Withdrawn | Lot 44

4 Dixon Ground, Coniston, Cumbria LA21 8HQ

Withdrawn

  • Cottage
  • 2 Bedrooms
  • Tenure: See Legal Pack

Call the team on 01228 510 552 for more information

Auction Date

Wed 10/12/2025

Auction Time

12:00

Auction Venue

The Halston Hotel, 20-34 Warwick Road • CA1 1AB

Lakeland cottage in sought after location

Two bedroom traditional mid terrace Lakeland cottage. Conveniently positioned close to the village centre, Coniston is centrally placed within the National Park and makes an excellent base. In need of some modernising, the property comprises: living room and kitchen to the ground floor, 2 bedrooms and bathroom to the first floor.

Tenure

See Legal Pack

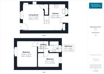
Ground Floor

Living Room 12'11 x 10'4 with open fire place Kitchen 12'10 x 8'1 with a range of wall and base units

First Floor

Bedroom 12'10 x 10' Bedroom 6'11 x 10'5 Bathroom 5'7 x 4'10 with shower over bath, WC and wash hand basin

Outside

Small garden to the front.

Viewing

To view, please call Matthew Benjamin on 015394 32220

Energy Efficiency Rating (EPC)

Current Rating E

Services

Interested parties are invited to make their own enquiries to the relevant authorities as to the availability of the services.

Local Authority

Westmorland and Furness Council

Solicitors

Thomson Hayton Winkley, Ref: Craig Jackson, Tel: 01539 446585

Offered in association with

Matthews Benjamin

Important Notice to Prospective Buyers:

We draw your attention to the Special Conditions of Sale within the Legal Pack, referring to other charges in addition to the purchase price which may become payable. Such costs may include Search Fees, reimbursement of Sellers costs and Legal Fees, and Transfer Fees amongst others.

Additional Fees

Administration Charge - 1.2% inc VAT of the purchase price, subject to a minimum of £1500 inc VAT, payable on exchange of contracts.

Disbursements - Please see the legal pack for any disbursements listed that may become payable by the purchaser on completion.

View Larger Map

Disclaimer: The map preview provided above is for general guidance only and may not accurately reflect the exact location or surrounding buildings. Prospective buyers and interested parties are strongly advised to independently verify the precise location and surroundings before bidding.