For Sale By Auction | 12:00, 12 February 2026 | Lot 2

45 Bedford Road, Carlisle, Cumbria CA2 5QD

Sold £110,000

  • Bungalow
  • 3 Bedrooms
  • Tenure: See Legal Pack

Call the team on 01228 510 552 for more information

Auction Date

Thu 12/02/2026

Auction Time

12:00

Auction Venue

The Halston Hotel, 20-34 Warwick Road • CA1 1AB

Viewing Times:

Sun 25 Jan

12:15-12:45

Fri 30 Jan

12:45-13:15

Sat 7 Feb

12:15-12:45

Tue 10 Feb

12:00-12:30

Detached bungalow, west side of City

A three bedroomed detached bungalow with garage and garden situated on the west side of the City between Dalston Road and Wigton Road. It is in need of improvement but offers great potential.

Tenure

See Legal Pack

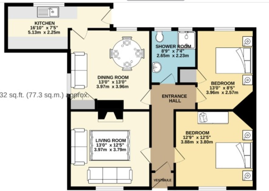
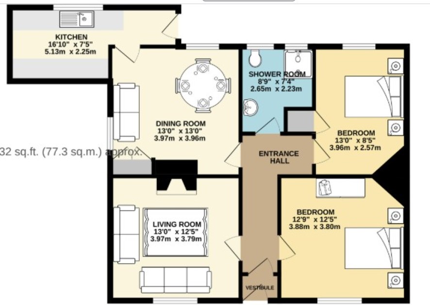
Vestibule

Hall

Living Room 13' x 13'

Kitchen 7'9 x 7'6 + 9' x 4'

Wet Room 8'9 x 7'6 max

Rear Bedroom 13'3 x 8'6

Front Bedroom 12'6 x 12'

Bedroom 12'6 x 12'

Outside

Forecourt, side lawned garden, rear yard and Garage 17'6 x 8'3 with vehicular access off Abbotts Road.

Energy Efficiency Rating (EPC)

Current Rating D

Services

Interested parties are invited to make their own enquiries to the relevant authorities as to the availability of the services.

Local Authority

Cumberland Council

Solicitors

Atkinson Ritson Solicitors, Ref: Sarah Crampton, Tel: 01228 525221

Offered in association with

H&H Land & Estates

Important Notice to Prospective Buyers:

We draw your attention to the Special Conditions of Sale within the Legal Pack, referring to other charges in addition to the purchase price which may become payable. Such costs may include Search Fees, reimbursement of Sellers costs and Legal Fees, and Transfer Fees amongst others.

Additional Fees

Administration Charge - 1.2% inc VAT of the purchase price, subject to a minimum of £1500 inc VAT, payable on exchange of contracts.

Disbursements - Please see the legal pack for any disbursements listed that may become payable by the purchaser on completion.

View Larger Map

Disclaimer: The map preview provided above is for general guidance only and may not accurately reflect the exact location or surrounding buildings. Prospective buyers and interested parties are strongly advised to independently verify the precise location and surroundings before bidding.