For Sale By Auction | 12:00, 09 April 2026 | Lot 25

1 Windy Hill, Milnthorpe, Cumbria LA7 7PZ

*Guide | £135,000 (plus fees)

  • Detached House
  • 2 Bedrooms
  • Tenure: Freehold

Call the team on 01228 510 552 for more information

Auction Date

Thu 09/04/2026

Auction Time

12:00

Auction Venue

The Halston Hotel, 20-34 Warwick Road • CA1 1AB

Detached Stone Built Property

Detached, two bedroom, stone built property. Set over three floors the property is situated in the heart of Milnthorpe, close to all local amenities and transport links.

Tenure

Freehold

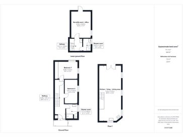
Ground Floor

Living/Kitchen/Dining area 9.29m x 3.73m

First Floor

Bedroom 3.13m x 3.00m Bedroom 3.91m x 2.24m Shower Room 2.11m x 2.06m Hallway 6.34m x 1.81m

Lower Ground Floor

Room/Office 4.59m x 3.39m Shower Room 2.07m x 1.33m Hallway 2.21m x 1.36m

Viewings

To View, Please Call Waterhouse Estate Agents On 01524 760048

Energy Efficiency Rating (EPC)

Current Rating E

Services

Interested parties are invited to make their own enquiries to the relevant authorities as to the availability of the services.

Local Authority

Westmorland and Furness Council

Solicitors

Thomson Hayton Winkley, 25 Crescent Road, Ref: Zoe Gibson, Tel: 015394 46585

Offered in association with

Waterhouse Estate Agents

Important Notice to Prospective Buyers:

We draw your attention to the Special Conditions of Sale within the Legal Pack, referring to other charges in addition to the purchase price which may become payable. Such costs may include Search Fees, reimbursement of Sellers costs and Legal Fees, and Transfer Fees amongst others.

Additional Fees

Administration Charge - 1.2% inc VAT of the purchase price, subject to a minimum of £1500 inc VAT, payable on exchange of contracts.

Disbursements - Please see the legal pack for any disbursements listed that may become payable by the purchaser on completion.

View Larger Map

Disclaimer: The map preview provided above is for general guidance only and may not accurately reflect the exact location or surrounding buildings. Prospective buyers and interested parties are strongly advised to independently verify the precise location and surroundings before bidding.