For Sale By Auction | 12:00, 09 April 2026

Flimby Hall, Wedgwood Road, Flimby, Maryport, Cumbria CA15 8QX

*Guide | £1 (plus fees)

  • Detached House
  • 5 Bedrooms
  • Tenure: See Legal Pack

Call the team on 01228 510 552 for more information

Auction Date

Thu 09/04/2026

Auction Time

12:00

Auction Venue

The Halston Hotel, 20-34 Warwick Road • CA1 1AB

Grade II* listed building for full restoration

An imposing, detached house with gardens and outbuildings situated in this coastal village between Maryport and Workington. This Grade II* listed building was built over 250 years ago, it is the subject of a dangerous structure notice and is in need of total restoration hence it being offered with a nil reserve price. It offers a tremendous opportunity to acquire a property of special architectural and historic interest and create an individual family home. There will be no internal viewings.

Tenure

See Legal Pack

There will be no viewings at this property

What3words location ///flipper.depth.tunnel

Ground Floor

Hall Reception Room 6.2m x 4.4m Reception Room 4.4m x 3.4m Kitchen 5.6m x 5.2m Pantry 5.7m x 3.3m

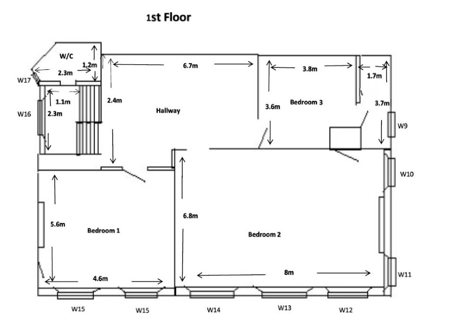
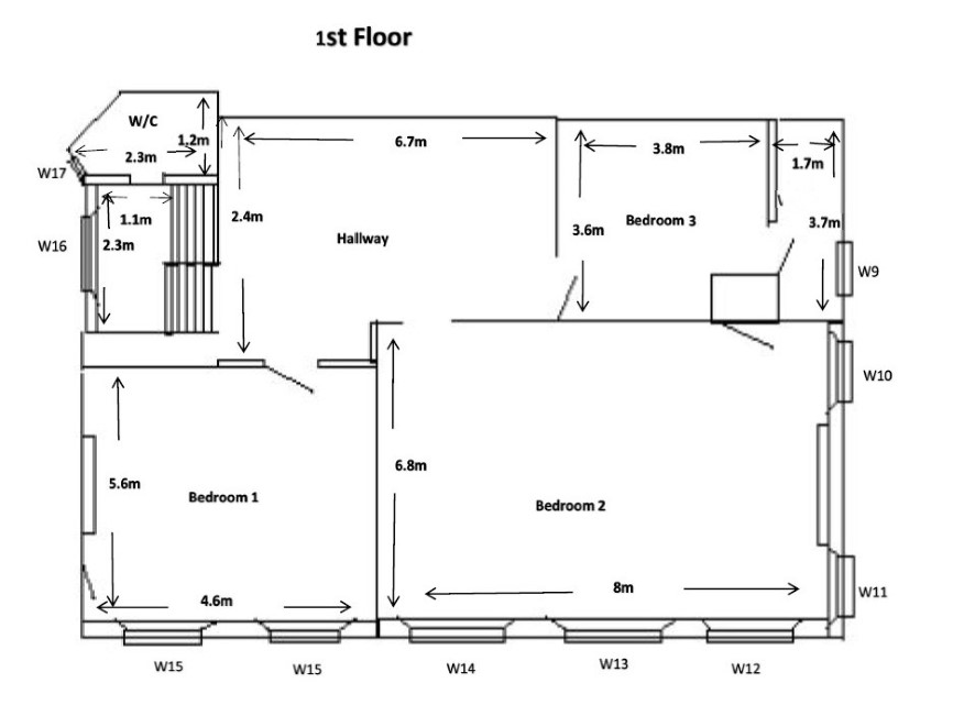
First Floor

Landing Bedroom 5.6m x 4.6m Bedroom 8m x 6.2m Bedroom 3.8m x 3.6m leading to Bathroom 3.7m x 1.7m

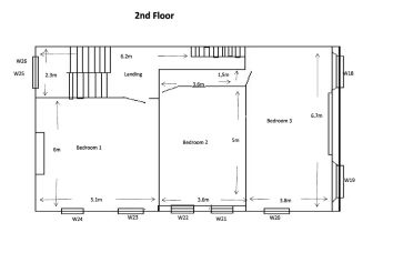
Second Floor

Landing Bedroom 6m x 5.1m Bedroom 5m x 3.6m Bedroom 6.7m x 3.8m

Outside

Driveway to courtyard with adjoining outbuildings including kennels, lawned garden to front and side of property - see the title plan.

Dangerous structure notice

The property is the subject of a dangerous structure notice DS/2025/0036. Interested parties should make their own enquiries to Cumberland Council regarding their proposed changes, inspect the legal pack and consult their own independent legal adviser.

Services

Interested parties are invited to make their own enquiries to the relevant authorities as to the availability of the services.

Local Authority

Cumberland Council

Solicitors

HFT Gough & CO, 38-42 Lowther Street, Ref: Suzanne Webb, Tel: 01946 692461

Important Notice to Prospective Buyers:

We draw your attention to the Special Conditions of Sale within the Legal Pack, referring to other charges in addition to the purchase price which may become payable. Such costs may include Search Fees, reimbursement of Sellers costs and Legal Fees, and Transfer Fees amongst others.

Additional Fees

Administration Charge - 1.2% inc VAT of the purchase price, subject to a minimum of £1500 inc VAT, payable on exchange of contracts.

Disbursements - Please see the legal pack for any disbursements listed that may become payable by the purchaser on completion.

View Larger Map

Disclaimer: The map preview provided above is for general guidance only and may not accurately reflect the exact location or surrounding buildings. Prospective buyers and interested parties are strongly advised to independently verify the precise location and surroundings before bidding.