Withdrawn | Lot 44

Past & Presents, Beech House, Main Street, Grange over Sands, Cumbria, LA11 6AB

Withdrawn

  • Shop
  • Tenure: See Legal Pack

Call the team on 01228 510 552 for more information

Auction Date

Thu 16/02/2017

Auction Time

18:30

Auction Venue

Coronation Hall County Square, Ulverston, LA12 7LZ

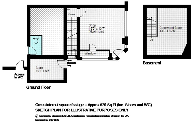
Ground floor retail premises

Ground floor lock up commercial premises in centre of Grange over Sands, suit many uses (subject to permissions) Mains sales area, Basement storage and separate sales area with separate access.

Tenure

See Legal Pack

Main sales area

15’ x 13’7

Basement

14’9 x 12’6

Store/Retail area

10’ x 12’6

Viewing

Please telephone 015395 32301

Energy Efficiency Rating (EPC)

Current Rating E

Services

Interested parties are invited to make their own enquiries to the relevant authorities as to the availability of the services.

Local Authority

South Lakeland District Council

Solicitors

Shirley Evans, 5 Lowther Gardens, Grange over Sands, LA11 7EX, Tel: 015395 35208

Important Notice to Prospective Buyers:

We draw your attention to the Special Conditions of Sale within the Legal Pack, referring to other charges in addition to the purchase price which may become payable. Such costs may include Search Fees, reimbursement of Sellers costs and Legal Fees, and Transfer Fees amongst others.

Additional Fees

Administration Charge - Purchasers will be required to pay an administration fee of £720 inc VAT

Disbursements - Please see the legal pack for any disbursements listed that may become payable by the purchaser on completion.

View Larger Map

Disclaimer: The map preview provided above is for general guidance only and may not accurately reflect the exact location or surrounding buildings. Prospective buyers and interested parties are strongly advised to independently verify the precise location and surroundings before bidding.