For Sale By Auction | 12:00, 21 February 2019 | Lot 2

28 Station Road, Aspatria, Cumbria, CA7 2AL

Sold £32,500

  • Terraced House
  • 2 Bedrooms
  • Tenure: See Legal Pack

Call the team on 01228 510 552 for more information

Auction Date

Thu 21/02/2019

Auction Time

12:00

Auction Venue

Carlisle Racecourse Durdar Road, Carlisle, CA2 4TS

Viewing Times:

Sat 2 Feb

10:00-10:30

Sat 9 Feb

13:45-14:15

Sat 16 Feb

12:30-13:00

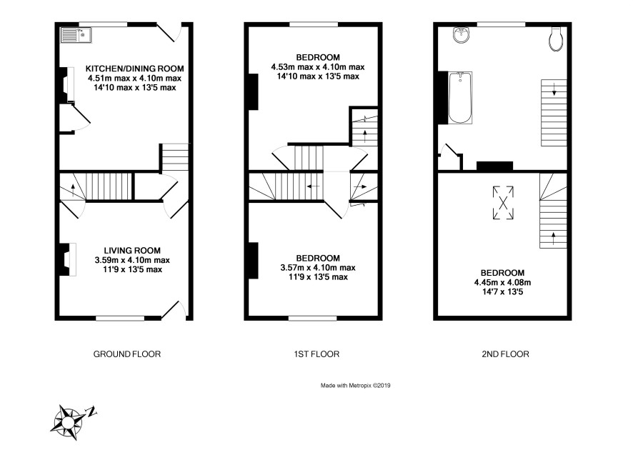
Development property - three storey terrace house with rear garden

A spacious, three storey terraced property with first floor bathroom, rear garden and parking conveniently situated near the railway station in Aspatria with easy access to Carlisle, West Cumbria, the Solway coast and the Lake District National Park. Originally believed to have been a pair of "back to back" houses, which explains it's unusual split level layout, the property is in need of a thorough programme of modernisation but offers tremendous potential.It can only be appreciated by internal inspection.

Tenure

See Legal Pack

Front Sitting Room - 13'6 x 11'9

with open fireplace;

Dining Kitchen - 14'9 x 13'3

with open fireplace with back boiler.

First Floor Landing

Front Bedroom - 13'6 x 12'

Rear Bedroom - 13'3 x 11'9

Bathroom - 14'9 x 13'3

with bath, basin and WC;

Attic Room - 14'6 x 13'3

with velux rooflight;

Outside

The property owns the lane and access to the rear garden area with parking - see title plan.

Viewing

Please telephone 01228 510552

Energy Efficiency Rating (EPC)

Current Rating G

Services

Interested parties are invited to make their own enquiries to the relevant authorities as to the availability of the services.

Local Authority

Allerdale Borough Council

Important Notice to Prospective Buyers:

We draw your attention to the Special Conditions of Sale within the Legal Pack, referring to other charges in addition to the purchase price which may become payable. Such costs may include Search Fees, reimbursement of Sellers costs and Legal Fees, and Transfer Fees amongst others.

Additional Fees

Administration Charge - £900 inc VAT payable on exchange of contracts.

Disbursements - Please see the legal pack for any disbursements listed that may become payable by the purchaser on completion.

View Larger Map

Disclaimer: The map preview provided above is for general guidance only and may not accurately reflect the exact location or surrounding buildings. Prospective buyers and interested parties are strongly advised to independently verify the precise location and surroundings before bidding.