For Sale By Auction | 12:00, 17 April 2019 | Lot 1

Upper Floors, 34 Lowther Street, Whitehaven, Cumbria, CA28 7JS

Sold £27,000

  • Commercial Property
  • Tenure: See Legal Pack

Call the team on 01228 510 552 for more information

Auction Date

Wed 17/04/2019

Auction Time

12:00

Auction Venue

Carlisle Racecourse Durdar Road, Carlisle, CA2 4TS

Viewing Times:

Sat 30 Mar

10:45-11:15

Sat 6 Apr

10:15-10:45

Sat 13 Apr

10:15-10:45

Tue 16 Apr

10:00-10:30

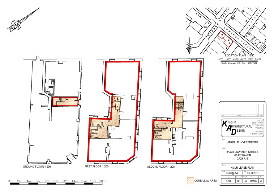
Upper floors of town centre property

The upper floors of a prominent, town centre property, on the corner of Lowther Street and King Street above Costa coffee shop and close to the harbour. The property was last used as office space but could be used for residential conversion subject to the necessary approvals. It extends overall to approximately 257 sq metres or 2,770 sq feet and is offered with vacant possession on a 999 years lease with a peppercorn ground rent

Tenure

See Legal Pack

First Floor

Hallway with access to Ladies & Gents WC's; Room 1 - 19.9 sq m = 214 sq ft Room 2 - 24.9 sq m = 268 sq ft Room 3 - 18.2 sq m = 196 sq ft Room 4 - 14.7 = 158 sq ft Room 5 - 51.3 sq m = 552 sq ft

Second Floor

Hallway with access to Ladies & Gents WC's; Room 1 - 19.5 sq m = 210 sq ft Room 2 - 24.4 sq m = 263 sq ft Room 3 - 18.6 sq m = 200 sq ft Room 4 - 14.7 = 158 sq ft Room 5 - 51.3 sq m = 552 sq ft

Measurements

Please note that the quoted areas are taken from the Valuation Office Agency who calculate areas by the net internal method.

Lease

999 years lease - see legal pack

Viewing

Please telephone 01228 510552

Energy Efficiency Rating (EPC)

Current Rating TBC

Services

Interested parties are invited to make their own enquiries to the relevant authorities as to the availability of the services.

Local Authority

Copeland Borough Council

Important Notice to Prospective Buyers:

We draw your attention to the Special Conditions of Sale within the Legal Pack, referring to other charges in addition to the purchase price which may become payable. Such costs may include Search Fees, reimbursement of Sellers costs and Legal Fees, and Transfer Fees amongst others.

Additional Fees

Administration Charge - £900 inc VAT payable on exchange of contracts.

Disbursements - Please see the legal pack for any disbursements listed that may become payable by the purchaser on completion.

View Larger Map

Disclaimer: The map preview provided above is for general guidance only and may not accurately reflect the exact location or surrounding buildings. Prospective buyers and interested parties are strongly advised to independently verify the precise location and surroundings before bidding.