For Sale By Auction | 12:00, 25 July 2019 | Lot 5

5 Lawson Street, Aspatria, Cumbria, CA7 3DR

Sold £38,000

  • End of Terrace House
  • 2 Bedrooms
  • Tenure: See Legal Pack

Call the team on 01228 510 552 for more information

Auction Date

Thu 25/07/2019

Auction Time

12:00

Auction Venue

Carlisle Racecourse Durdar Road, Carlisle, CA2 4TS

Viewing Times:

Sat 29 Jun

13:00-13:30

Sat 6 Jul

14:00-14:30

Sat 13 Jul

10:30-11:00

Sat 20 Jul

14:15-14:45

Well appointed, end terrace cottage ready to occupy or let

A well appointed two bedroomed end of terrace cottage with attractive, sandstone front elevation about 50' long situated some 20 miles south west of Carlisle with easy access to the Solway coast, Lake District National Park and West Cumbria. The property has combi gas central heating and an easily maintained gravelled and paved rear garden with timber shed. It is ready to occupy or let.

Tenure

See Legal Pack

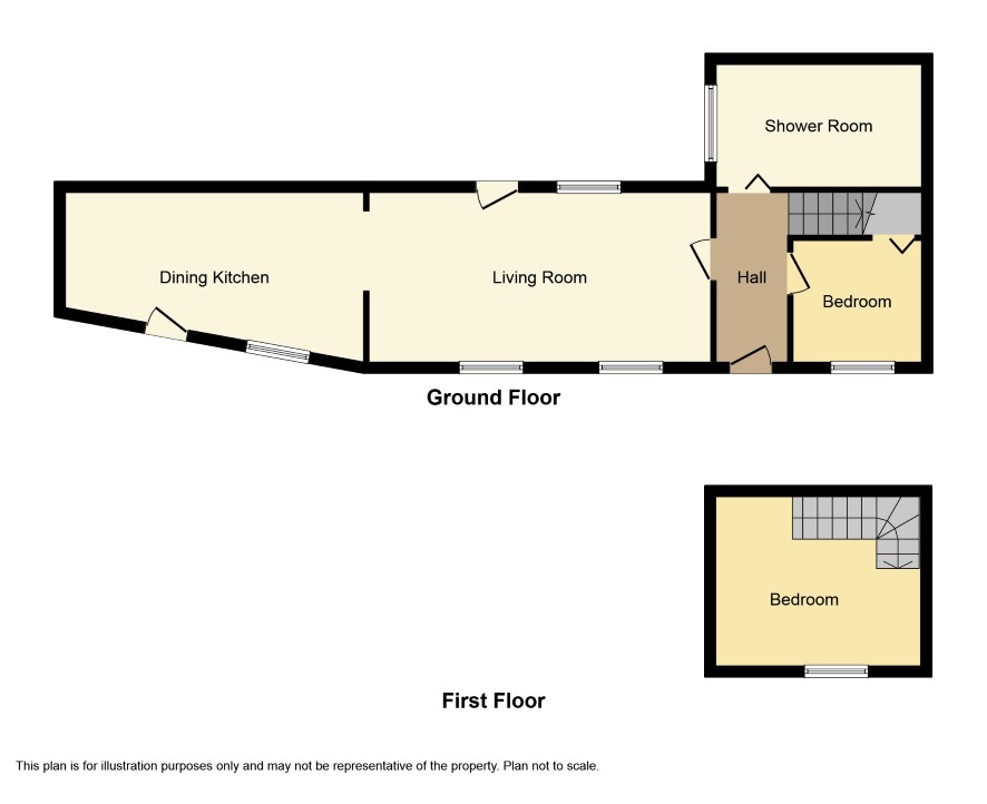
Entrance Hall

Living Room - 19'9 x 9'

with two front windows and rear outer door;

Dining Kitchen - 19' x 8' max

with range of modern wall and floor units, oven and hoband outer front door;

Bedroom - 7'6 x 7'3

Shower Room - 10'9 x 3'9

with shower enclosure, basin and WC;

First Floor Bedroom - 10'9 x 7'6

with feature fireplace;

Outside

Easily maintained, paved and gravelled rear garden area with timber shed.

Viewing

Please telephone 01228 510552

Energy Efficiency Rating (EPC)

Current Rating D

Services

Interested parties are invited to make their own enquiries to the relevant authorities as to the availability of the services.

Local Authority

Allerdale Borough Council

Important Notice to Prospective Buyers:

We draw your attention to the Special Conditions of Sale within the Legal Pack, referring to other charges in addition to the purchase price which may become payable. Such costs may include Search Fees, reimbursement of Sellers costs and Legal Fees, and Transfer Fees amongst others.

Additional Fees

Administration Charge - £900 inc VAT payable on exchange of contracts.

Disbursements - Please see the legal pack for any disbursements listed that may become payable by the purchaser on completion.

View Larger Map

Disclaimer: The map preview provided above is for general guidance only and may not accurately reflect the exact location or surrounding buildings. Prospective buyers and interested parties are strongly advised to independently verify the precise location and surroundings before bidding.