Withdrawn | Lot 25

Stone Croft, Allerby, Wigton, Cumbria, CA7 2NL

Withdrawn

  • Detached House
  • 4 Bedrooms
  • Tenure: See Legal Pack

Call the team on 01228 510 552 for more information

Auction Date

Thu 12/09/2019

Auction Time

12:00

Auction Venue

Carlisle Racecourse Durdar Road, Carlisle, CA2 4TS

Viewing Times:

Sat 17 Aug

13:15-13:45

Sat 24 Aug

14:15-14:45

Sat 31 Aug

11:45-12:15

Sat 7 Sep

11:45-12:15

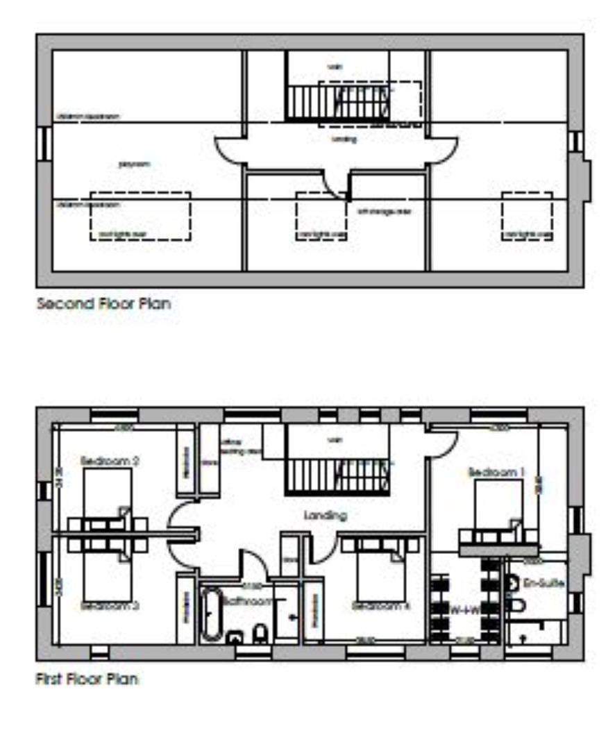
Development opportunity - detached village house to modernise or demolish and replace with new detached property

A detached country house occupying a delightful site facing the green in this popular village between Aspatria and Maryport with easy access to the Solway coast and Lake District National Park. The property is in very basic order throughout, and the buyer has a choice to either carry out a thorough programme of modernisation or, planning consent has been granted by Allerdale Borough Council (ref FUL/2019/0025 ), to demolish the existing building and replace with a new detached house. See the floorplans for the layout of the existing house and proposed new property.

Tenure

See Legal Pack

Viewing

Please telephone 01228 510552

Energy Efficiency Rating (EPC)

Current Rating D

Services

Interested parties are invited to make their own enquiries to the relevant authorities as to the availability of the services.

Local Authority

Allerdale Borough Council

Important Notice to Prospective Buyers:

We draw your attention to the Special Conditions of Sale within the Legal Pack, referring to other charges in addition to the purchase price which may become payable. Such costs may include Search Fees, reimbursement of Sellers costs and Legal Fees, and Transfer Fees amongst others.

Additional Fees

Administration Charge - £900 inc VAT payable on exchange of contracts.

Disbursements - Please see the legal pack for any disbursements listed that may become payable by the purchaser on completion.

View Larger Map

Disclaimer: The map preview provided above is for general guidance only and may not accurately reflect the exact location or surrounding buildings. Prospective buyers and interested parties are strongly advised to independently verify the precise location and surroundings before bidding.