Sold Prior | Lot 10

Moorlands, Cross Road, Banham, Norwich, Norfolk, NR16 2DQ

Sold Prior

  • Detached House
  • 5 Bedrooms
  • Tenure: Freehold

Call the team on 01603 505 100 for more information

Auction Date

Wed 04/12/2019

Auction Time

11:00

Auction Venue

The Sunningdale Suite Dunston Hall Hotel, Ipswich Road, Norwich, NR14 8PQ

Viewing Times:

Fri 8 Nov

11:00-12:00

Thu 14 Nov

10:00-10:30

Thu 21 Nov

10:00-10:30

Thu 28 Nov

10:00-10:30

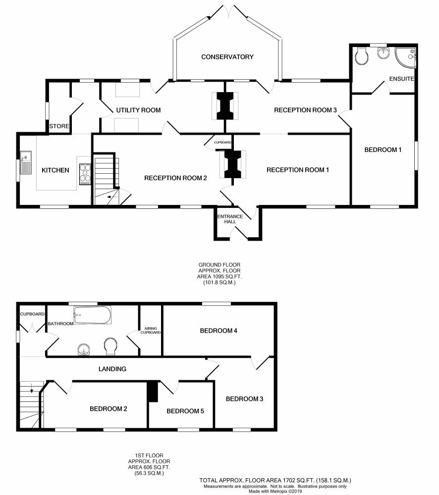
A five bedroom detached country cottage in a delightful rural position

Moorlands is a deceptively spacious detached cottage situated in a picturesque location on the fringe of the village of Banham. The property has splendid views across fields to the front and rear and benefits from generous accommodation. The ground floor provides three reception rooms, master bedroom with shower room, a recently upgraded kitchen and utility, whilst the first floor provides four further bedrooms and a family bathroom. Minor updating/redecoration is now required to realise the property's obvious potential. A splendid family home in an enviable location.

Tenure

Freehold

Ground Floor

Entrance hall, lounge, dining room, snug/study, kitchen, utility room, bedroom one with en-suite shower room

First Floor

Landing, four bedrooms (one of which leads off another), bathroom

Outside

The exterior has a generous in and out gravel drive with a five bar gate providing access to a block-built garage/workshop with a staircase to a mezzanine floor. The rear garden has a number of timber outbuildings providing useful storage.

Energy Efficiency Rating (EPC)

Current Rating F

Services

Interested parties are requested to make their own enquiries to the relevant authorities as to the availability of services.

Local Authority

Breckland Council

Solicitors

Poole Alcock, Poplar House, 12 Manchester Road, Wimslow, SK9 1BG, Ref: Victoria Moetamedi, Tel: 01625 380060

Important Notice to Prospective Buyers:

We draw your attention to the Special Conditions of Sale within the Legal Pack, referring to other charges in addition to the purchase price which may become payable. Such costs may include Search Fees, reimbursement of Sellers costs and Legal Fees, and Transfer Fees amongst others.

Additional Fees

Administration Charge - 0.3% inc VAT of the purchase price, subject to a minimum of £900 inc VAT, payable on exchange of contracts.

Disbursements - Please see the legal pack for any disbursements listed that may become payable by the purchaser on completion.

View Larger Map

Disclaimer: The map preview provided above is for general guidance only and may not accurately reflect the exact location or surrounding buildings. Prospective buyers and interested parties are strongly advised to independently verify the precise location and surroundings before bidding.