Withdrawn | Lot 27

7 Duncan Road, Great Yarmouth, Norfolk, NR30 3BJ

Withdrawn

  • End of Terrace House
  • 3 Bedrooms
  • Tenure: Freehold

Call the team on 01603 505 100 for more information

Auction Date

Wed 04/12/2019

Auction Time

11:00

Auction Venue

The Sunningdale Suite Dunston Hall Hotel, Ipswich Road, Norwich, NR14 8PQ

Viewing Times:

Wed 20 Nov

11:45-12:15

Wed 27 Nov

11:45-12:15

A double fronted end terrace ideal for investment

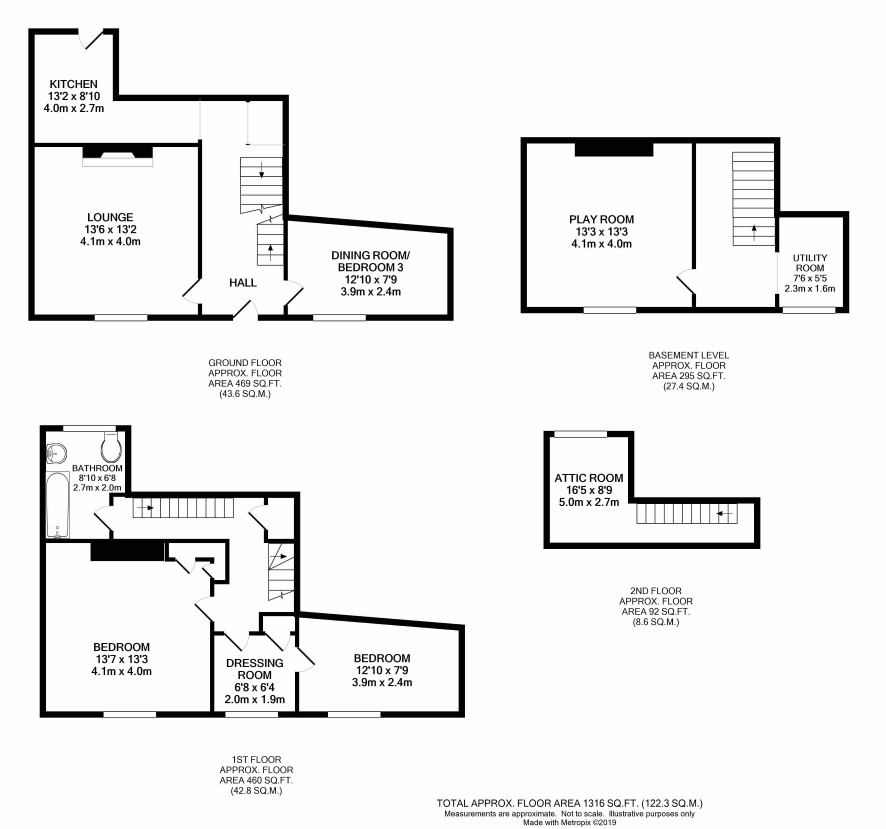
This four storey end terrace has been tenanted for a number of years most recently producing £750 pcm (£9,000pa). The property which is now vacant has been freshly decorated and is ready for the finishing touches before occupation by another tenant or owner occupier. The adaptable accommodation includes three bedrooms an attic room and large basement room. The property is located close to the sea front and town centre shops.

Tenure

Freehold

Basement

Reception room, utility room

Ground Floor

Hall lounge, dining room/bedroom 3, kitchen

First Floor

Landing, two bedrooms, dressing room, bathroom

Second Floor

Attic Room/Studio

Outside

Walled front garden.

Energy Efficiency Rating (EPC)

Current Rating E

Services

Interested parties are requested to make their own enquiries to the relevant authorities as to the availability of services.

Local Authority

Great Yarmouth Borough Council

Solicitors

Poole Alcock, Poplar House, 12 Manchester Road, Wimslow, SK9 1BG, Ref: Victoria Moetamedi, Tel: 01625 380060

Important Notice to Prospective Buyers:

We draw your attention to the Special Conditions of Sale within the Legal Pack, referring to other charges in addition to the purchase price which may become payable. Such costs may include Search Fees, reimbursement of Sellers costs and Legal Fees, and Transfer Fees amongst others.

Additional Fees

Administration Charge - 0.3% inc VAT of the purchase price, subject to a minimum of £900 inc VAT, payable on exchange of contracts.

Disbursements - Please see the legal pack for any disbursements listed that may become payable by the purchaser on completion.

View Larger Map

Disclaimer: The map preview provided above is for general guidance only and may not accurately reflect the exact location or surrounding buildings. Prospective buyers and interested parties are strongly advised to independently verify the precise location and surroundings before bidding.