For Sale By Auction | 11:00, 12 February 2020 | Lot 23

Poplar House, Silfield Street, Silfield, Wymondham, Norfolk, NR18 9NL

Sold £350,000

  • Detached House
  • 4 Bedrooms
  • Tenure: Freehold

Call the team on 01603 505 100 for more information

Auction Date

Wed 12/02/2020

Auction Time

11:00

Auction Venue

The Sunningdale Suite Dunston Hall Hotel, Ipswich Road, Norwich, NR14 8PQ

Viewing Times:

Mon 27 Jan

12:00-12:45

Fri 31 Jan

12:00-12:45

Wed 5 Feb

12:00-12:45

Period farmhouse requiring modernisation with range of outbuildings

This delightfully situated detached farmhouse is now vacant and in need of a program of modernisation and possible redevelopment. The property is sold with a range of semi derelict outbuildings and storage sheds which may also offer a range of further possible uses. The gardens extend to approximately 1.4 acre (stms) with two further fields (approx. 16 and 3 acres) available as separate lots within the auction. The purchase will have the option to acquire the land once successful. The project would be ideal for private individual, builder or developer and once modernised would be a delightful family home in a picturesque rural setting. The market town of Wymondham is within a mile of the property and Norwich is situated approximately 8 miles to the North East.

Tenure

Freehold

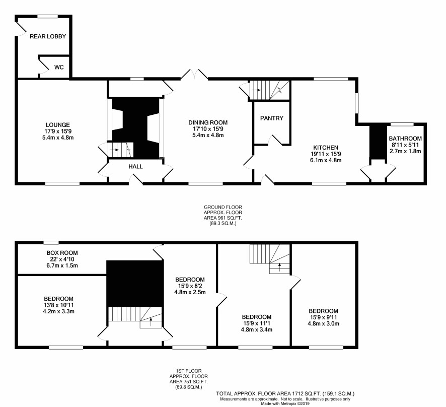
Ground Floor

Hall, lounge, dining room, kitchen/breakfast room, bathroom, utility area, w.c.

First Floor

Landing two staircases, four bedrooms, box room

Outside

The property is situated on a rectangular plot extending to approximately 0.6 acre stms which contains a former steel framed storage barn, a derelict clay lump cattle shed, and various workshops and storage sheds.

Energy Efficiency Rating (EPC)

Current Rating E

Services

Interested parties are requested to make their own enquiries to the relevant authorities as to the availability of services.

Local Authority

Norfolk County Council

Solicitors

Norton Legal, Unit 8 Beech Avenue, Taverham, Norwich, NR8 6HW, Ref: Tracy Guest, Tel: (01603) 864331

Important Notice to Prospective Buyers:

We draw your attention to the Special Conditions of Sale within the Legal Pack, referring to other charges in addition to the purchase price which may become payable. Such costs may include Search Fees, reimbursement of Sellers costs and Legal Fees, and Transfer Fees amongst others.

Additional Fees

Administration Charge - 0.3% inc VAT of the purchase price, subject to a minimum of £900 inc VAT, payable on exchange of contracts.

Disbursements - Please see the legal pack for any disbursements listed that may become payable by the purchaser on completion.

View Larger Map

Disclaimer: The map preview provided above is for general guidance only and may not accurately reflect the exact location or surrounding buildings. Prospective buyers and interested parties are strongly advised to independently verify the precise location and surroundings before bidding.