For Sale By Auction | 14:00, 13 February 2020 | Lot 43

2 West End Corner, Wrentham, Beccles, Suffolk, NR34 7NF

Sold £85,000

  • Terraced House
  • 2 Bedrooms
  • Tenure: Freehold

Call the team on 01473 558 888 for more information

Auction Date

Thu 13/02/2020

Auction Time

14:00

Auction Venue

The Willow Suite Muthu Belstead Brook Hotel, Belstead Road, Ipswich, IP2 9HB

Viewing Times:

Wed 29 Jan

12:00-12:30

Mon 3 Feb

12:00-12:30

Fri 7 Feb

14:30-15:00

Mid terraced cottage in need of full renovation in the sought after village of Wrentham

This two bedroom mid terraced property is situated in a row of quaint cottages in the sought after village of Wrentham. The property is in need of full refurbishment as it has been empty for a number of years. Externally the windows are currently boarded for security reasons, however internally there is a home waiting to be restored. Ideal for those purchaser's looking for a project. The village of Wrentham is located off the east coast near to the prestigous coastal town of Southwold.

Tenure

Freehold

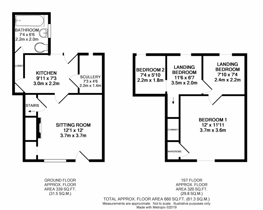
Ground Floor

Sitting room, kitchen, scullery, bathroom.

First Floor

Landing, landing bedroom leading to main bedroom, bedroom two.

Exterior

A small overgrown garden is located to the front of the property. Access to the rear is gained via a shared path leading to the rear garden which is in need of attention.

Energy Efficiency Rating (EPC)

Current Rating G

Services

Interested parties are requested to make their own enquiries to the relevant authorities as to the availability of services.

Local Authority

East Suffolk Council

Solicitors

East Suffolk Council Legal Department, 4 Canning Road, Lowestoft, NR33 0EQ, Ref: Louise Sayer, Tel: 01502 523256

Important Notice to Prospective Buyers:

We draw your attention to the Special Conditions of Sale within the Legal Pack, referring to other charges in addition to the purchase price which may become payable. Such costs may include Search Fees, reimbursement of Sellers costs and Legal Fees, and Transfer Fees amongst others.

Additional Fees

Administration Charge - 0.3% inc VAT of the purchase price, subject to a minimum of £900 inc VAT, payable on exchange of contracts.

Disbursements - Please see the legal pack for any disbursements listed that may become payable by the purchaser on completion.

View Larger Map

Disclaimer: The map preview provided above is for general guidance only and may not accurately reflect the exact location or surrounding buildings. Prospective buyers and interested parties are strongly advised to independently verify the precise location and surroundings before bidding.