Withdrawn | Lot 85

Shop, Flat & House To Rear Of, 29 Norfolk Street, 21A & 21B Old Sunway, Kings Lynn, Norfolk, PE30 1AL

Withdrawn

  • Mixed Use
  • 4 Bedrooms
  • Tenure: Freehold

Call the team on 01733 889833 for more information

Auction Date

Wed 15/04/2020

Auction Time

13:00

Auction Venue

ONLINE

Vacant shop and three bedroom house with tenanted one bedroom flat currently producing £465 pcm

An ideal investment opportunity located in the town centre of Kings Lynn. The vacant ground floor shop has an area of 42.8 sq/m and a rateable value of £5,100 with effect from 1st April 2017 (according to the valuation office website). The one bedroom flat above, which is accessed to the rear, is currently let producing £465 pcm on an assured shorthold tenancy. The three bedroom house which is also accessed to the rear is currently vacant but was producing £650 pcm on a previous assured shorthold tenancy.

Tenure

Freehold

Shop - 29 Norfolk Street

Shop, w.c.

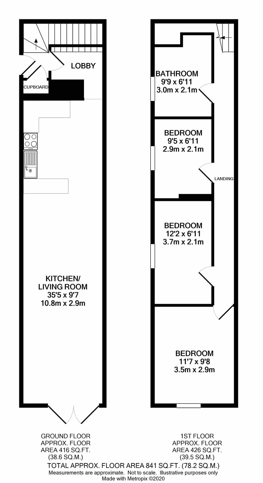
House - 21a Old Sunway

Ground Floor

Entrance hall, open plan kitchen/living room

First Floor

Three bedrooms, bathroom

Outside

Courtyard

Flat - 21b Old Sunway

Lounge, kitchen, bathroom, bedroom.

Business Rates

The current business rateable value is £5,100

Energy Efficiency Rating (EPC)

Current Rating D, D, D

Services

Interested parties are requested to make their own enquiries to the relevant authorities as to the availability of services.

Local Authority

Kings Lynn and West Norfolk Borough Council

Solicitors

Isadore Goldman, Lawrence House, 5 St Andrews Hill, Norwich, NR2 1AD, Ref: Robert Pyke, Tel: 01603 611370

Important Notice to Prospective Buyers:

We draw your attention to the Special Conditions of Sale within the Legal Pack, referring to other charges in addition to the purchase price which may become payable. Such costs may include Search Fees, reimbursement of Sellers costs and Legal Fees, and Transfer Fees amongst others.

Additional Fees

Administration Charge - 0.3% inc VAT of the purchase price, subject to a minimum of £954 inc VAT, payable on exchange of contracts.

Disbursements - Please see the legal pack for any disbursements listed that may become payable by the purchaser on completion.

View Larger Map

Disclaimer: The map preview provided above is for general guidance only and may not accurately reflect the exact location or surrounding buildings. Prospective buyers and interested parties are strongly advised to independently verify the precise location and surroundings before bidding.