Postponed | Lot 76

The Plough Inn, Holbeach St. Johns, Holbeach, Spalding, Lincolnshire, PE12 8RF

Postponed

  • Pub
  • Tenure: Freehold

Call the team on 01733 889833 for more information

Auction Date

Wed 15/04/2020

Auction Time

13:00

Auction Venue

ONLINE

A freehold detached Public House with living accommodation above and planning permission for holiday lets

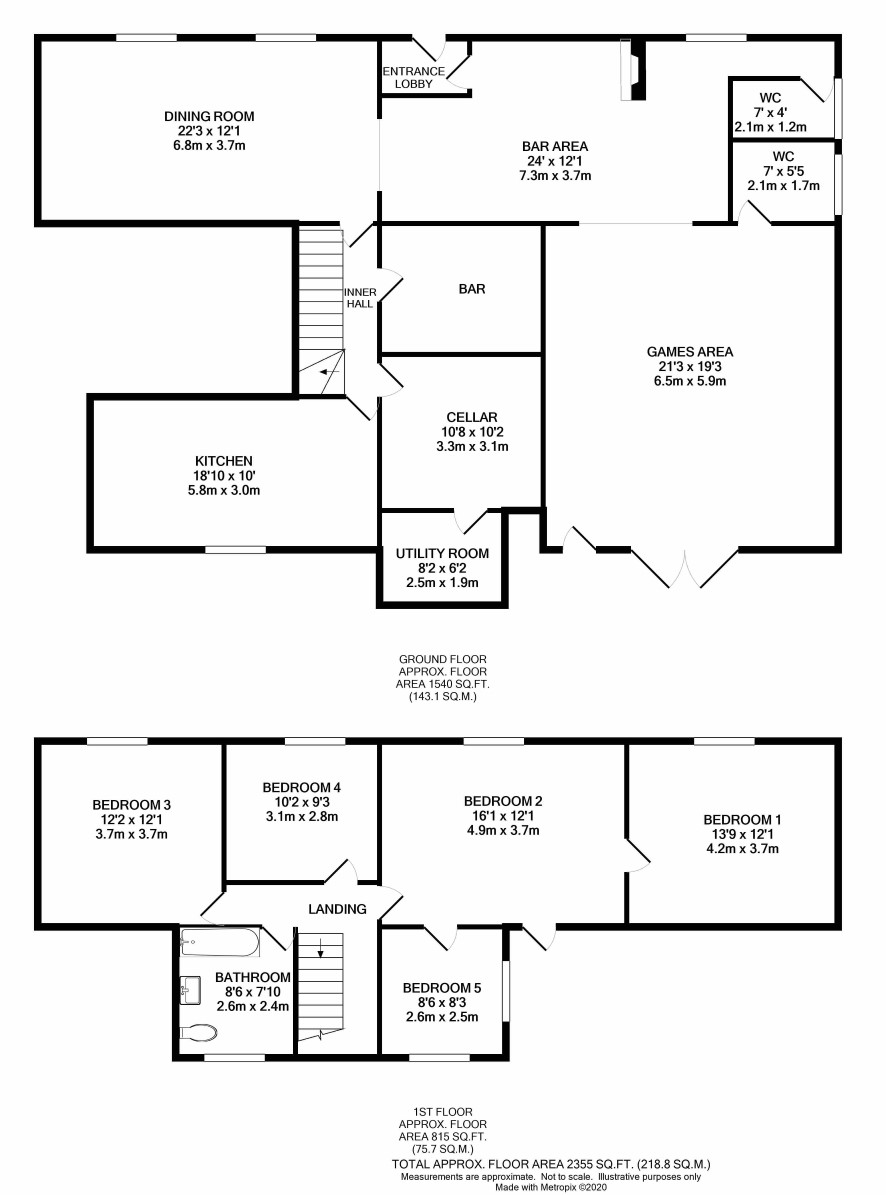
This Public House is located between Spalding and Holbeach in the village of Holbeach St Johns. The village has a school and village hall with further more extensive facilities found at Holbeach and Spalding. The Plough has a Bar area, Dining Area, Games Area, Ladies and Gents WCs, Kitchen, Cellar Room and Utility Room. Outside provides a Car Park with terrace areas. The current owners have planning permission Ref H09-0596-18 South Holland District Council to alter part of the ground floor to two holiday let rooms.

Tenure

Freehold

Ground Floor

Bar Area, Dining Area, Games Area, Bar, Ladies and Gents W.C. Kitchen, Cellar, and Utility Room

First Floor

Five Bedrooms and a Bathroom

Outside

Car Park.

Energy Efficiency Rating (EPC)

Current Rating C

Services

Interested parties are requested to make their own enquiries to the relevant authorities as to the availability of services.

Local Authority

South Holland District Council

Solicitors

Chattertons Solcs, 9 Broad Street, Stamford, PE9 1JY, Ref: James Ballam, Tel: 01780 764145

Important Notice to Prospective Buyers:

We draw your attention to the Special Conditions of Sale within the Legal Pack, referring to other charges in addition to the purchase price which may become payable. Such costs may include Search Fees, reimbursement of Sellers costs and Legal Fees, and Transfer Fees amongst others.

Additional Fees

Administration Charge - 0.3% inc VAT of the purchase price, subject to a minimum of £954 inc VAT, payable on exchange of contracts.

Disbursements - Please see the legal pack for any disbursements listed that may become payable by the purchaser on completion.

View Larger Map

Disclaimer: The map preview provided above is for general guidance only and may not accurately reflect the exact location or surrounding buildings. Prospective buyers and interested parties are strongly advised to independently verify the precise location and surroundings before bidding.