Sold Prior | Lot 23

Eastgate House, 17 Littleport Street, Kings Lynn, Norfolk, PE30 1PP

Sold Prior

  • Residential Development
  • Tenure: Freehold

Call the team on 01733 889833 for more information

Auction Date

Wed 03/06/2020

Auction Time

11:00

Auction Venue

ONLINE

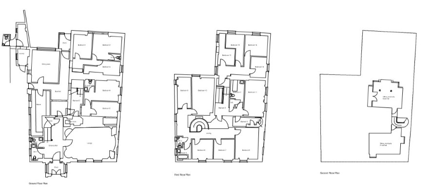
A Grade II listed former care home with planning permission for 6 residential flats with parking.

This substantial Grade ll listed former care home is conveniently located close to the town centre and railway station. The property which is arranged over three floors retains many of its original features, with rooms to accommodate the care home segregated by stud work. The accommodation area is around 476 sq/m.

Tenure

Freehold

Planning

Permission was granted by the Kings Lynn & West Norfolk Council on 12th February 2020 for change of use from vacant residential home for the elderly to form 6 residential flats. Reference No. 19/01066/CU.

Viewing

Call the auctioneer on 01553 777773 to arrange a viewing.

Energy Efficiency Rating (EPC)

Current Rating C

Services

Interested parties are requested to make their own enquiries to the relevant authorities as to the availability of services.

Local Authority

Kings Lynn and West Norfolk Borough Council

Solicitors

Birketts, Kingfisher House, 1 Gilders Way, Norwich, NR3 1UB, Ref: Joe Yexley, Tel: 01603 756500

Important Notice to Prospective Buyers:

We draw your attention to the Special Conditions of Sale within the Legal Pack, referring to other charges in addition to the purchase price which may become payable. Such costs may include Search Fees, reimbursement of Sellers costs and Legal Fees, and Transfer Fees amongst others.

Additional Fees

Administration Charge - 0.3% inc VAT of the purchase price, subject to a minimum of £954 inc VAT, payable on exchange of contracts.

Disbursements - Please see the legal pack for any disbursements listed that may become payable by the purchaser on completion.

View Larger Map

Disclaimer: The map preview provided above is for general guidance only and may not accurately reflect the exact location or surrounding buildings. Prospective buyers and interested parties are strongly advised to independently verify the precise location and surroundings before bidding.