Withdrawn | Lot 50

3 Bevan Street East, Lowestoft, Suffolk, NR32 2AA

Withdrawn

  • Retail Property (high street)
  • Tenure: Freehold

Call the team on 01603 505 100 for more information

Auction Date

Wed 03/06/2020

Auction Time

11:00

Auction Venue

ONLINE

A prominent vacant commercial premises with further potential

Located close to the towns main shopping and retail area this vacant shop and office is ready for a new lease of life. The property has a large retail and storage area on the ground floor with a range of offices and storage on the first floor. Potential exists to convert the upper floor into residential accommodation (stpp) which could enhance the income potential of the property. The property is located close to the railway station and has a high footfall past the frontage being near to the town centre.

Tenure

Freehold

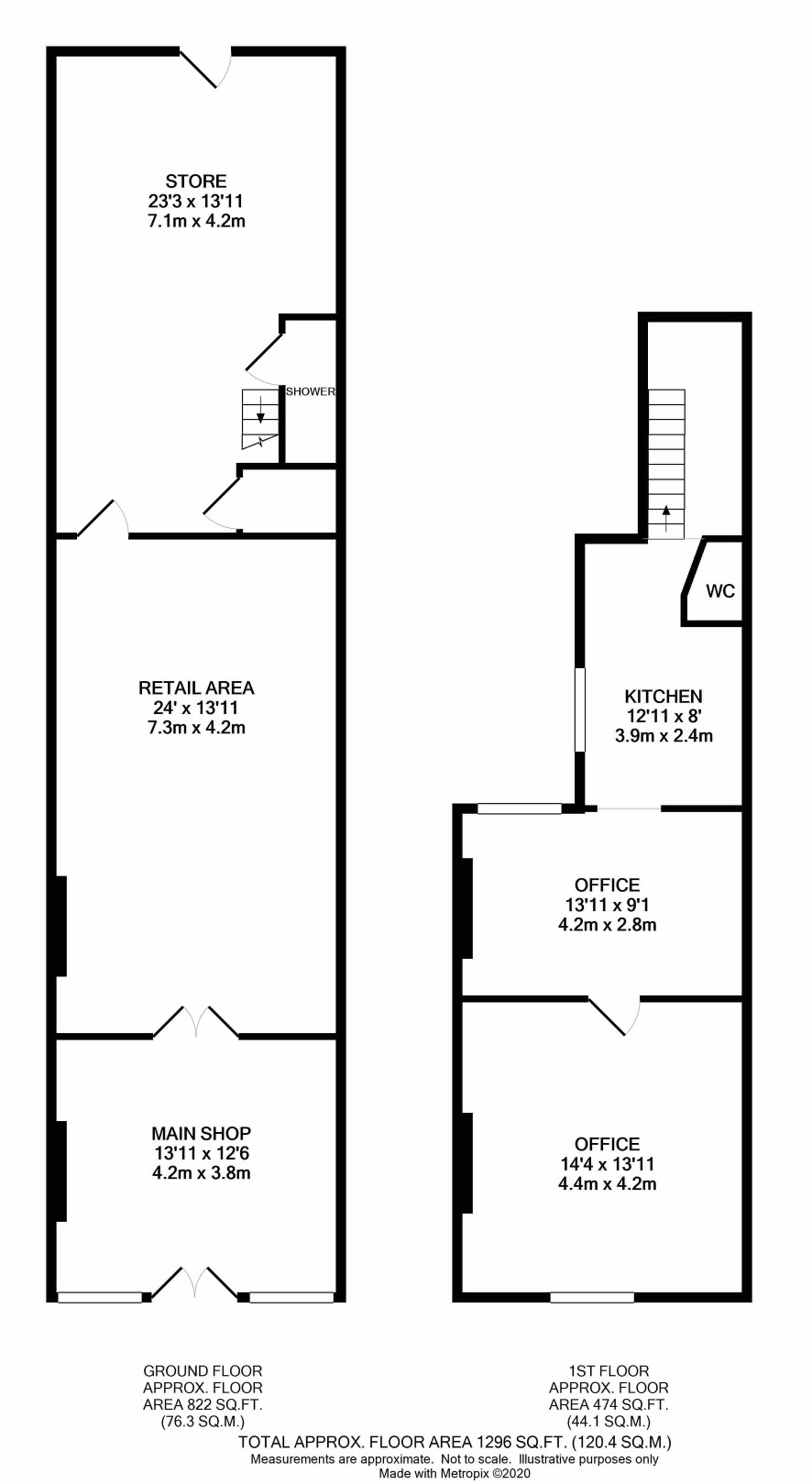
Ground Floor

Shop/retail space, storage,/workroom, store with rear access, w.c., shower room.

First Floor

Kitchenette, offices and storage

Energy Efficiency Rating (EPC)

Current Rating E

Services

Interested parties are requested to make their own enquiries to the relevant authorities as to the availability of services.

Local Authority

Waveney District Council

Solicitors

RMNJ Solicitors, 63 Hamilton Square, Birkenhead, CH41 5JF, Ref: Claire Gustafson

Important Notice to Prospective Buyers:

We draw your attention to the Special Conditions of Sale within the Legal Pack, referring to other charges in addition to the purchase price which may become payable. Such costs may include Search Fees, reimbursement of Sellers costs and Legal Fees, and Transfer Fees amongst others.

Additional Fees

Administration Charge - 0.3% inc VAT of the purchase price, subject to a minimum of £954 inc VAT, payable on exchange of contracts.

Disbursements - Please see the legal pack for any disbursements listed that may become payable by the purchaser on completion.

View Larger Map

Disclaimer: The map preview provided above is for general guidance only and may not accurately reflect the exact location or surrounding buildings. Prospective buyers and interested parties are strongly advised to independently verify the precise location and surroundings before bidding.