Sold Prior | Lot 33

All Saints House, 34 Church Road, Tilney All Saints, Kings Lynn, Norfolk, PE34 4SW

Sold Prior

  • Detached House
  • 3 Bedrooms
  • Tenure: Freehold

Call the team on 01733 889833 for more information

Auction Date

Wed 03/06/2020

Auction Time

11:00

Auction Venue

ONLINE

A Grade ll listed property with substantial barn attached in need of modernisation

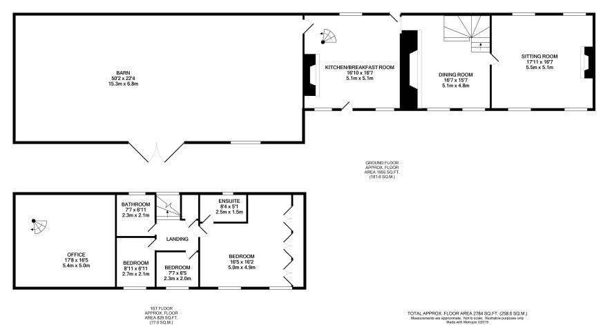
This Grade ll listed property stands in a prominent location opposite the church in the village of Tilney All Saints. All Saints House dates around 1700 and maintains many of its original features including beamed ceilings. There are also two attic rooms accessed off the first floor landing. The attached barn has no date recorded, but this is believed to be much older. Measuring around 103 sq/m, the barn is currently used for storage, however potential may exist for the conversion of the building into residential (subject to planning). The property is set in gardens of 0.26 acres with garden to front, courtyard to the rear of the barn and part of the main house. The majority of rear garden is behind the right hand side of the property. Tilney All Saints is a village located six miles to the West of Kings Lynn with its mainline train station to London kings Cross and shopping centre.

Tenure

Freehold

Ground Floor

Sitting room, dining room, kitchen

First Floor

Landing, three bedrooms, en-suite shower room, bathroom, office (accessed via separate spiral staircase off the kitchen), access to two attic rooms.

Attached Barn

Measuring around 103 sq/m

Outside

Front garden, courtyard and rear gardens.

Viewing

Call the auctioneer on 01553 777773 to arrange a viewing.

Services

Interested parties are requested to make their own enquiries to the relevant authorities as to the availability of services.

Local Authority

Kings Lynn and West Norfolk Borough Council

Solicitors

Hayes & Storr, The Old County Court, County Court Road, King's Lynn, PE30 5EJ, Ref: Susan Matthews, Tel: 01760 768496

Important Notice to Prospective Buyers:

We draw your attention to the Special Conditions of Sale within the Legal Pack, referring to other charges in addition to the purchase price which may become payable. Such costs may include Search Fees, reimbursement of Sellers costs and Legal Fees, and Transfer Fees amongst others.

Additional Fees

Administration Charge - 0.3% inc VAT of the purchase price, subject to a minimum of £954 inc VAT, payable on exchange of contracts.

Disbursements - Please see the legal pack for any disbursements listed that may become payable by the purchaser on completion.

View Larger Map

Disclaimer: The map preview provided above is for general guidance only and may not accurately reflect the exact location or surrounding buildings. Prospective buyers and interested parties are strongly advised to independently verify the precise location and surroundings before bidding.