For Sale By Auction | 11:00, 03 June 2020 | Lot 46

8-10 Fair Green, Glemsford, Suffolk, CO10 7PH

Sold £208,000

  • Mixed Use
  • 3 Bedrooms
  • Tenure: Freehold

Call the team on 01473 558 888 for more information

Auction Date

Wed 03/06/2020

Auction Time

11:00

Auction Venue

ONLINE

A spacious mixed use premises with conversion/development potential (STP)

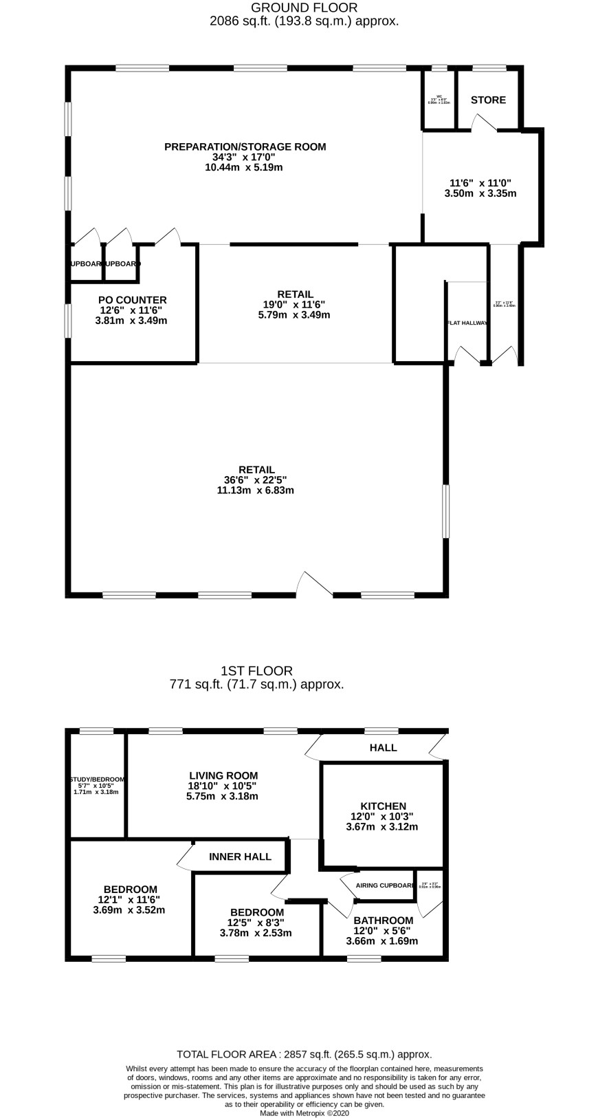
Having formerly traded as a post office/convenience store, the ground floor extends to some 190 sq/m (2,000 sq/ft) including storage and lends itself to a variety of trades under its A1 classification. The first floor comprises a fully self contained three bedroom flat of some 75 sq/m (800 sq/ft) which with some cosmetic enhancement will be ready to go for either an owner occupier or tenant. Glemsford is located some 6 and 12 miles from Sudbury and Bury St Edmunds respectively with the highly regarded villages of Long Melford and Cavendish just a short drive away. The property also offers scope for re-development for alternative use, prospective purchasers are advised to contact the Local Authority in this respect.

Tenure

Freehold

Viewing

Please call the Auctioneer - 01473 558 888

Energy Efficiency Rating (EPC)

Current Rating C,C

Services

Interested parties are requested to make their own enquiries to the relevant authorities as to the availability of services.

Local Authority

Babergh District Council

Solicitors

Bishop Akers & Co, Haven House, 193 Swanley Lane, Swanley, BR8 7LA, Ref: Philippa Tilbury, Tel: 01322 660617

Important Notice to Prospective Buyers:

We draw your attention to the Special Conditions of Sale within the Legal Pack, referring to other charges in addition to the purchase price which may become payable. Such costs may include Search Fees, reimbursement of Sellers costs and Legal Fees, and Transfer Fees amongst others.

Additional Fees

Administration Charge - 0.3% inc VAT of the purchase price, subject to a minimum of £954 inc VAT, payable on exchange of contracts.

Disbursements - Please see the legal pack for any disbursements listed that may become payable by the purchaser on completion.

View Larger Map

Disclaimer: The map preview provided above is for general guidance only and may not accurately reflect the exact location or surrounding buildings. Prospective buyers and interested parties are strongly advised to independently verify the precise location and surroundings before bidding.