For Sale By Auction | 11:00, 03 June 2020 | Lot 37

15 Church Street, Donington, Spalding, Lincolnshire, PE11 4UA

Sold £76,000

  • Terraced House
  • 2 Bedrooms
  • Tenure: Freehold

Call the team on 01733 889833 for more information

Auction Date

Wed 03/06/2020

Auction Time

11:00

Auction Venue

ONLINE

A terraced 2 double bedroom house offered with vacant possession.

This 2 bedroom terraced house is located within the village of Donnington 8 miles from the market town of Spalding. The property offers a lounge/diner, Kitchen, Utility with 2 bedrooms and a bathroom on the first floor.

Tenure

Freehold

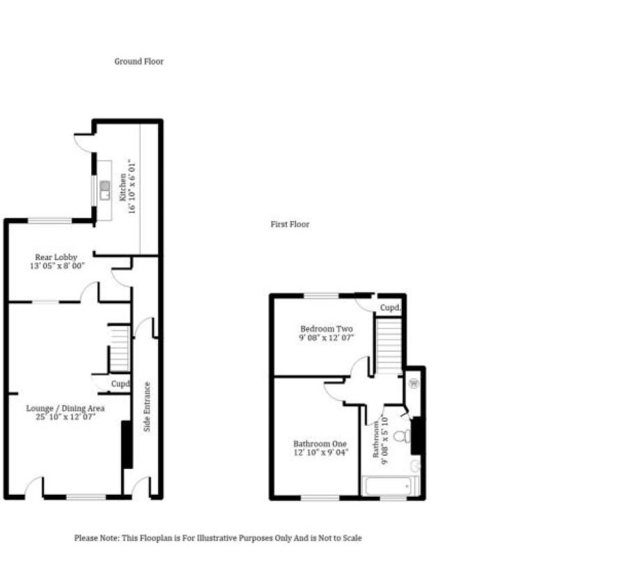
Ground Floor

Lounge/ Diner, Kitchen, Rear Lobby

First Floor

2 Bedrooms and a Bathroom.

Outside

At rear a courtyard.

Viewings

Please call the auctioneer of a viewing 01733 889833

Energy Efficiency Rating (EPC)

Current Rating F

Services

Interested parties are requested to make their own enquiries to the relevant authorities as to the availability of services.

Local Authority

South Holland District Council

Solicitors

Wilsons, 20 The Grove, Ilkley, LS29 9EG, Ref: Oliver Taman, Tel: 01943 602998

Important Notice to Prospective Buyers:

We draw your attention to the Special Conditions of Sale within the Legal Pack, referring to other charges in addition to the purchase price which may become payable. Such costs may include Search Fees, reimbursement of Sellers costs and Legal Fees, and Transfer Fees amongst others.

Additional Fees

Buyer's Premium - £900 inc VAT payable on exchange of contracts.

Administration Charge - 0.3% inc VAT of the purchase price, subject to a minimum of £954 inc VAT, payable on exchange of contracts.

Disbursements - Please see the legal pack for any disbursements listed that may become payable by the purchaser on completion.

View Larger Map

Disclaimer: The map preview provided above is for general guidance only and may not accurately reflect the exact location or surrounding buildings. Prospective buyers and interested parties are strongly advised to independently verify the precise location and surroundings before bidding.