Withdrawn | Lot 13

26 Fairland Street, Wymondham, Norfolk, NR18 0AW

Withdrawn

  • Semi-Detached House
  • 3 Bedrooms
  • Tenure: Freehold

Call the team on 01603 505 100 for more information

Auction Date

Wed 22/07/2020

Auction Time

11:00

Auction Venue

ONLINE

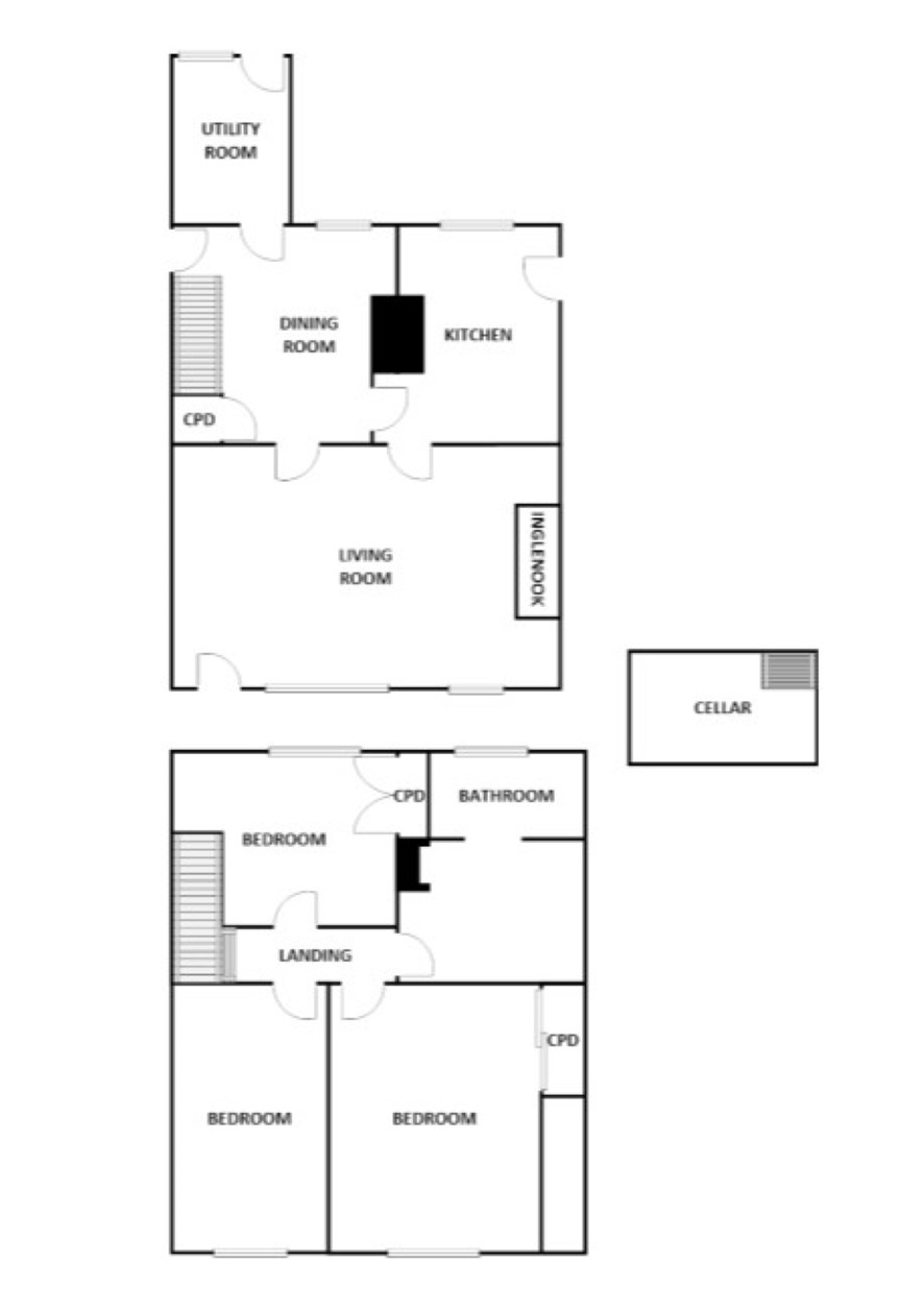
Three bedroom semi detached property requiring improvement

This Grade II listed town centre property dates from 1730. It is much larger than no 24 offering around 1,300 sq/ft of living space with its own off road parking space.There is a wealth of original features including an inglenook fireplace in the sitting room. It is situated in the town centre close to a broad range of services and amenities including regular services to Norwich and Cambridge via bus or rail. The property is partly renovated and is an unfinished project and would be an ideal purchase for an owner occupier or investor.

Tenure

Freehold

Lower Ground Floor

Cellar

Ground Floor

Sitting room, kitchen, dining room, utility

First Floor

Landing, 3 bedrooms, bathroom

Outside

Carport providing off road parking space, railed front shingle garden and rear walled garden.

Services

Interested parties are requested to make their own enquiries to the relevant authorities as to the availability of services.

Local Authority

South Norfolk Council

Solicitors

Gepp Solicitors, 58 New London Road, Chelmsford, CM2 0PA, Ref: Mr Shah Bakar, Tel: 01245 343996

Important Notice to Prospective Buyers:

We draw your attention to the Special Conditions of Sale within the Legal Pack, referring to other charges in addition to the purchase price which may become payable. Such costs may include Search Fees, reimbursement of Sellers costs and Legal Fees, and Transfer Fees amongst others.

Additional Fees

Administration Charge - 0.3% inc VAT of the purchase price, subject to a minimum of £954 inc VAT, payable on exchange of contracts.

Disbursements - Please see the legal pack for any disbursements listed that may become payable by the purchaser on completion.

View Larger Map

Disclaimer: The map preview provided above is for general guidance only and may not accurately reflect the exact location or surrounding buildings. Prospective buyers and interested parties are strongly advised to independently verify the precise location and surroundings before bidding.