Withdrawn | Lot 53

The Townhouse, 10 Edith Road, Clacton-On-Sea, Essex, CO15 1JU

Withdrawn

  • Guest House
  • 11 Bedrooms
  • Tenure: Freehold

Call the team on 01473 558 888 for more information

Auction Date

Wed 22/07/2020

Auction Time

11:00

Auction Venue

ONLINE

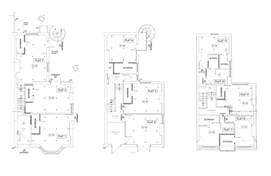
A substantial fully occupied 11 letting room dwelling producing over £75,000 per annum

Situated a short walk from the sea front and pier is this 3 storey building which has been renovated to a particularly high standard and now provides 11 letting rooms, 4 with independent access and all with en-suite facilities. Each room features high quality furnishings including televisions with Netflix, communal washing & drying facilities and all are let on a 1 month rolling licence basis as per the following schedule: Room 1: £140 per week from 1st May 2020 Room 2: £150 per week from 14th June 2020 Room 3: £150 per week from 1st August 2019 Room 4: £150 per week from 8th April 2020 Room 5: £150 per week from 1st January 2020 Room 6: £150 per week from 1st June 2020 Room 7: £103 per week from 1st March 2020 Room 8: £120 per week from 28th April 2020 Room 9: £150 per week from 1st February 2020 Room 10: £90 per week from 1st May 2020 Room 11: £100 per week from 17th January 2020 Total Income: £1,453 per week (£75,556 per annum) With a number of the residents having been in situ for several months and a gross annual yield equating to nearly 17% of the Guide Price, we believe this to be an unrivalled investment opportunity.

Tenure

Freehold

Energy Efficiency Rating (EPC)

Current Rating E

Services

Interested parties are requested to make their own enquiries to the relevant authorities as to the availability of services.

Local Authority

Tendring District Council

Solicitors

Hewitsons, Elgin House, Billing Road, Northampton, NN1 5AU, Ref: Bryan Guest, Tel: 01604 463146

Important Notice to Prospective Buyers:

We draw your attention to the Special Conditions of Sale within the Legal Pack, referring to other charges in addition to the purchase price which may become payable. Such costs may include Search Fees, reimbursement of Sellers costs and Legal Fees, and Transfer Fees amongst others.

Additional Fees

Administration Charge - 0.3% inc VAT of the purchase price, subject to a minimum of £954 inc VAT, payable on exchange of contracts.

Disbursements - Please see the legal pack for any disbursements listed that may become payable by the purchaser on completion.

View Larger Map

Disclaimer: The map preview provided above is for general guidance only and may not accurately reflect the exact location or surrounding buildings. Prospective buyers and interested parties are strongly advised to independently verify the precise location and surroundings before bidding.