For Sale By Auction | 11:00, 22 July 2020 | Lot 9

38 Sandhole Lane, Little Plumstead, Norwich, Norfolk, NR13 5HZ

Sold £200,000

  • Detached Bungalow
  • 3 Bedrooms
  • Tenure: Freehold

Call the team on 01603 505 100 for more information

Auction Date

Wed 22/07/2020

Auction Time

11:00

Auction Venue

ONLINE

A detached chalet with three double bedrooms, some updating required

This well proportioned detached chalet has been in the same ownership for many years but is now to be sold vacant and in need of some updating to realise its full potential. The property has a well proportioned but easy to maintain garden with generous off road parking and a single garage. Heating is provided via a gas central heating system and the property has sealed unit double glazing virtually throughout. Little Plumstead is a popular village to the East of Norwich and within easy travelling distance of the Norfolk Broads, and the east Norfolk coastline. Viewings: Open viewings will be scheduled APPOINTMENT ESSENTIAL please contact the Norwich office on 01603 505100 to be allocated a time slot.

Tenure

Freehold

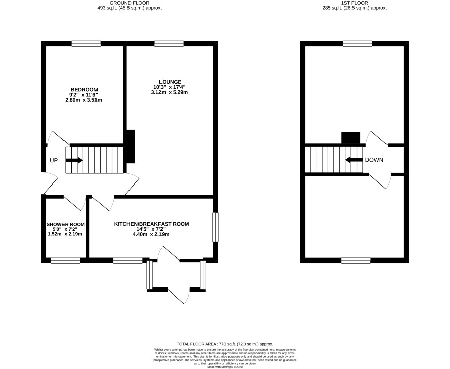
Ground Floor

Hall, lounge, kitchen/breakfast room, double bedroom, shower room,

First Floor

Landing, two double bedrooms.

Outside

Mainly shingled front garden with side driveway to a single garage. Lawned garden with patio area. further area of shingled garden with garden shed and workshop

Viewings

Open viewings have been scheduled - the next is Tuesday 14 July - APPOINTMENT ESSENTIAL please contact the Norwich office on 01603 505100 to be allocated a time slot.

Energy Efficiency Rating (EPC)

Current Rating D

Services

Interested parties are requested to make their own enquiries to the relevant authorities as to the availability of services.

Local Authority

Broadland District Council

Solicitors

Hatch Brenner, 4 Theatre Street, Norwich, NR2 1QY, Ref: Rachael Hughes, Tel: 01603 660811

Important Notice to Prospective Buyers:

We draw your attention to the Special Conditions of Sale within the Legal Pack, referring to other charges in addition to the purchase price which may become payable. Such costs may include Search Fees, reimbursement of Sellers costs and Legal Fees, and Transfer Fees amongst others.

Additional Fees

Administration Charge - 0.3% inc VAT of the purchase price, subject to a minimum of £954 inc VAT, payable on exchange of contracts.

Disbursements - Please see the legal pack for any disbursements listed that may become payable by the purchaser on completion.

View Larger Map

Disclaimer: The map preview provided above is for general guidance only and may not accurately reflect the exact location or surrounding buildings. Prospective buyers and interested parties are strongly advised to independently verify the precise location and surroundings before bidding.