Postponed | Lot 41

Flat 5, 105 Park Road, Peterborough, Cambridgeshire, PE1 2TR

Postponed

  • Flat
  • 1 Bedroom
  • Tenure: Leasehold. 99 years from 3rd July 1987 (66 years remaining). Ground Rent £75 pa.

Call the team on 01733 889833 for more information

Auction Date

Wed 22/07/2020

Auction Time

11:00

Auction Venue

ONLINE

A first floor one bedroom flat in the centre of Peterborough

This one bedroom flat is offered with vacant possession and is located within easy reach of the city centre. The flat offers a open plan kitchen/living room, double bedroom and a shower room. The flat is for owner occupation only.

Tenure

Leasehold. 99 years from 3rd July 1987 (66 years remaining). Ground Rent £75 pa.

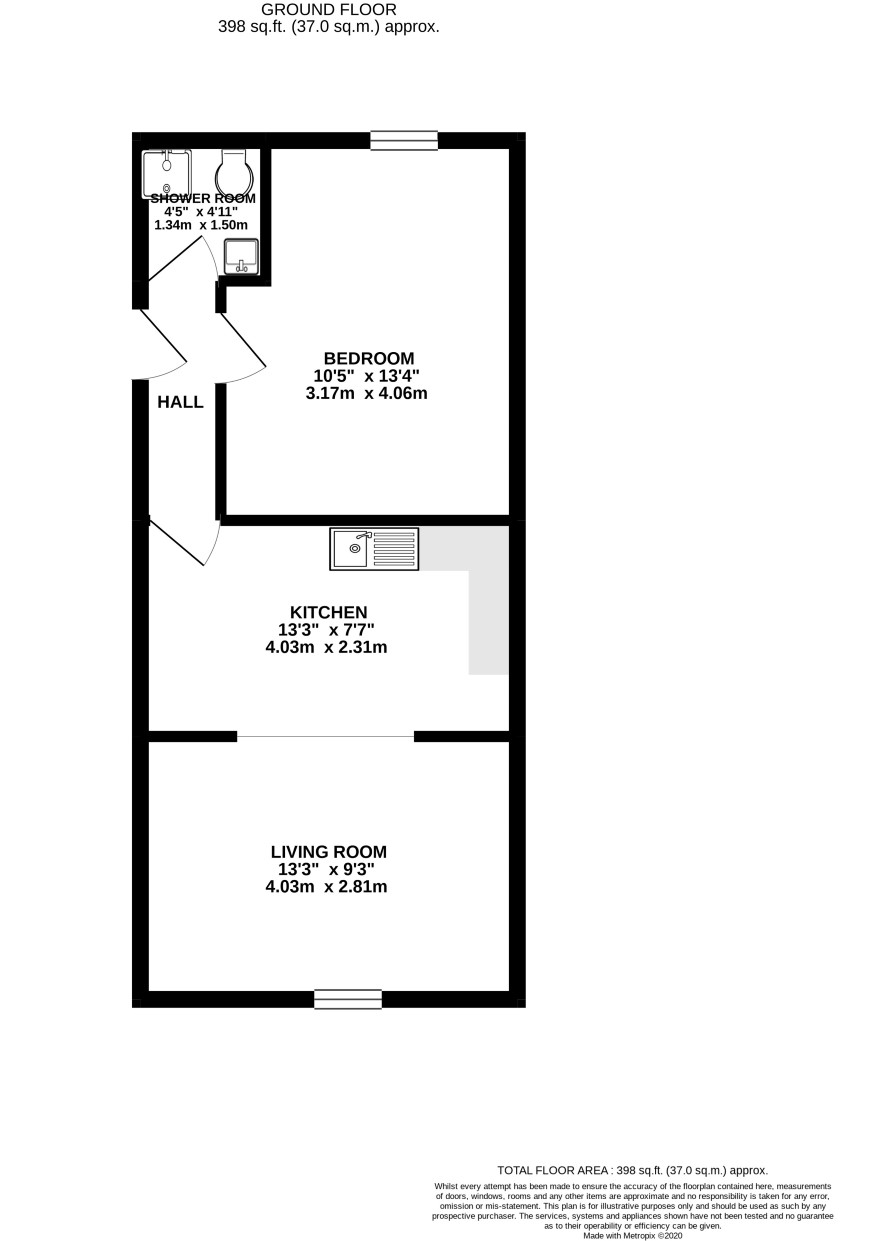
Accommodation

Hall, lounge/ kitchen, double bedroom, shower room.

Lease Details

99 years from 3rd July 1987 (66 years remaining). Ground Rent £75 pa.

Energy Efficiency Rating (EPC)

Current Rating C

Services

Interested parties are requested to make their own enquiries to the relevant authorities as to the availability of services.

Local Authority

Peterborough City Council

Solicitors

Hunter Coombs, 4 New Street, Oundle, PE8 4ED, Ref: James Steward, Tel: 01832 273506

Important Notice to Prospective Buyers:

We draw your attention to the Special Conditions of Sale within the Legal Pack, referring to other charges in addition to the purchase price which may become payable. Such costs may include Search Fees, reimbursement of Sellers costs and Legal Fees, and Transfer Fees amongst others.

Additional Fees

Administration Charge - 0.3% inc VAT of the purchase price, subject to a minimum of £954 inc VAT, payable on exchange of contracts.

Disbursements - Please see the legal pack for any disbursements listed that may become payable by the purchaser on completion.

View Larger Map

Disclaimer: The map preview provided above is for general guidance only and may not accurately reflect the exact location or surrounding buildings. Prospective buyers and interested parties are strongly advised to independently verify the precise location and surroundings before bidding.