For Sale By Auction | 11:00, 22 July 2020 | Lot 30a

87 St. Nicholas Road, Great Yarmouth, Norfolk, NR30 1NN

Sold £72,000

  • End of Terrace House
  • 4 Bedrooms
  • Tenure: Freehold

Call the team on 01603 505 100 for more information

Auction Date

Wed 22/07/2020

Auction Time

11:00

Auction Venue

ONLINE

Vacant four bedroom end terrace ideal for investment

Located close to the town centre and Market Place this four bedroom house is now vacant and ideal for investment. The property has gas central heating, double glazing and with minor improvement could be ready for early occupation. The property is a few steps from the Market Place and a short walk from the sea front, A wide range of shops and amenities are available within this popular coastal town and a regular bus and train service is available to all other major local centers including Norwich.

Tenure

Freehold

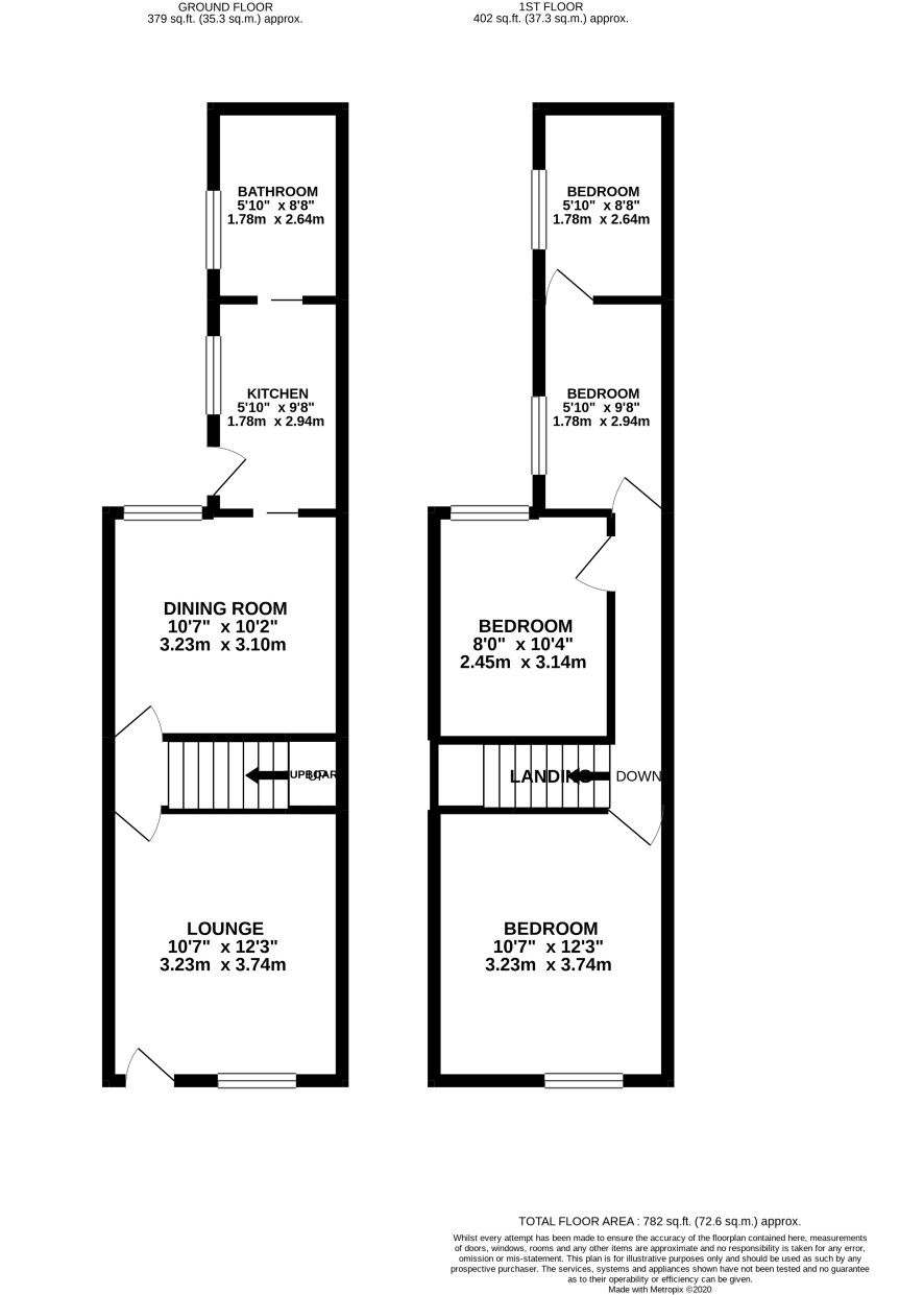
Ground Floor

Lounge, dining room, kitchen, shower room

First Floor

Landing, 4 bedrooms

Outside

Small front and rear gardens.

Viewings

Open viewings are being scheduled - the next are on Tuesday 14 & Wednesday 15 July - APPOINTMENT ESSENTIAL - please contact the Norwich office on 01603 505100 to be allocated a time slot.

Energy Efficiency Rating (EPC)

Current Rating E

Services

Interested parties are requested to make their own enquiries to the relevant authorities as to the availability of services.

Local Authority

Great Yarmouth Borough Council

Solicitors

Wilsons, 20 The Grove, Ilkley, LS29 9EG, Ref: Oliver Taman, Tel: 01943 602998

Important Notice to Prospective Buyers:

We draw your attention to the Special Conditions of Sale within the Legal Pack, referring to other charges in addition to the purchase price which may become payable. Such costs may include Search Fees, reimbursement of Sellers costs and Legal Fees, and Transfer Fees amongst others.

Additional Fees

Buyer's Premium - £900 inc VAT payable on exchange of contracts.

Administration Charge - 0.3% inc VAT of the purchase price, subject to a minimum of £954 inc VAT, payable on exchange of contracts.

Disbursements - Please see the legal pack for any disbursements listed that may become payable by the purchaser on completion.

View Larger Map

Disclaimer: The map preview provided above is for general guidance only and may not accurately reflect the exact location or surrounding buildings. Prospective buyers and interested parties are strongly advised to independently verify the precise location and surroundings before bidding.