For Sale By Auction | 11:00, 09 September 2020 | Lot 6

45B Duke Street, Norwich, Norfolk, NR3 3AP

Sold £100,000

  • Flat
  • 1 Bedroom
  • Tenure: Leasehold

Call the team on 01603 505 100 for more information

Auction Date

Wed 09/09/2020

Auction Time

11:00

Auction Venue

ONLINE

Self contained first floor apartment let producing £7,500 per annum

First floor apartment located close to the heart of the city. The apartment is currently let to an assured shorthold tenant producing £625 pcm (£7,500pa). The property has an allocated parking space and benefits from gas central heating (new boiler installed in 2020). The city centre and market place is a short walk from the property.

Tenure

Leasehold

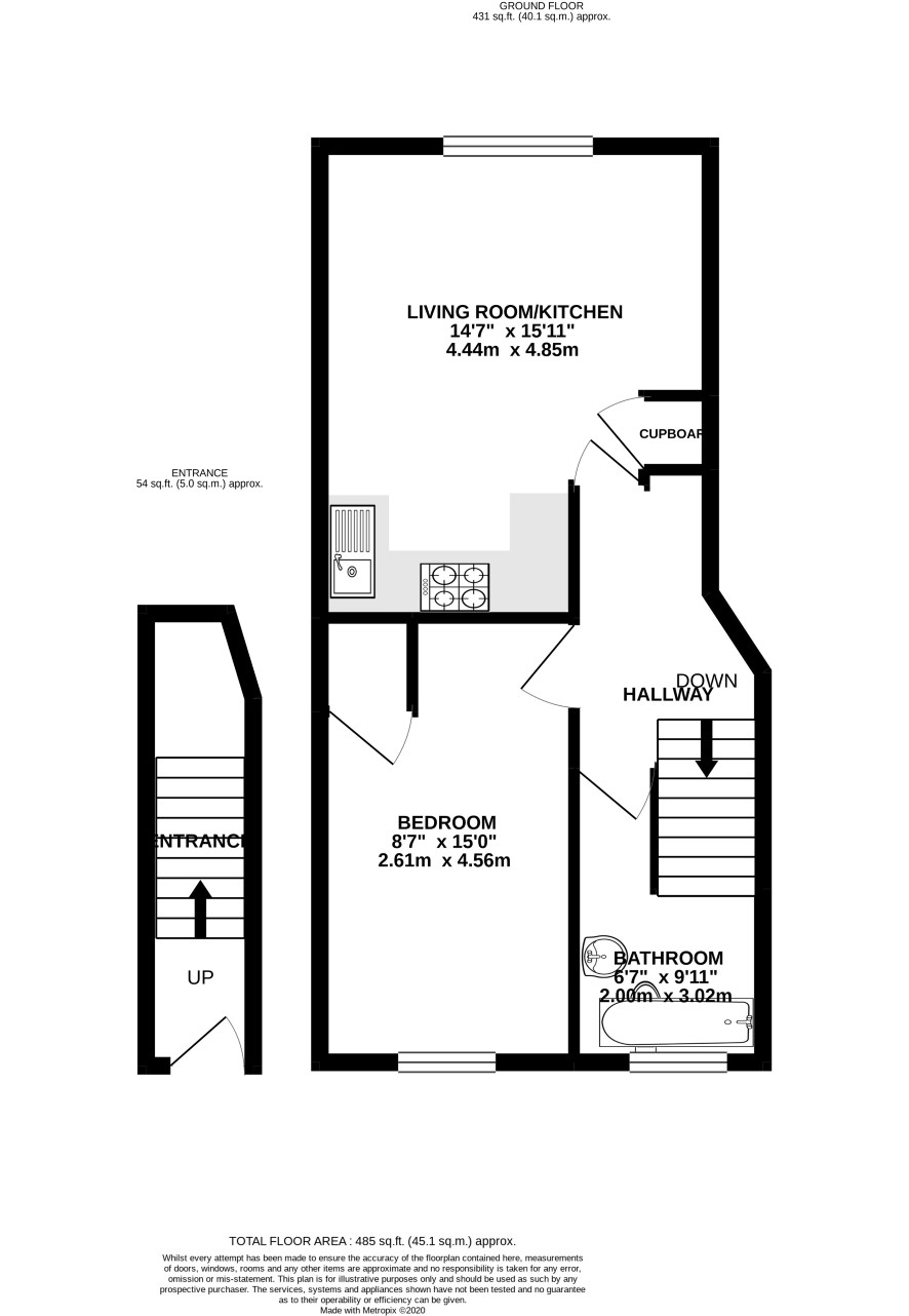
Ground Floor

Entrance lobby, door and staircase to first floor

First Floor

Landing, lounge area, kitchen area, bedroom, bathroom.

Outside

Allocated parking space.

Lease Details

Term: 149 years from 1st July 1988 Ground rent: £50 per annum Service Charge: £313.56 per annum

Viewings

Open viewings are scheduled for Wednesday 2 September - APPOINTMENT ESSENTIAL - please contact the Norwich office on 01603 505100 to be allocated a time slot on these specific viewing days Please note that gloves & masks are required to be worn at this property.

Energy Efficiency Rating (EPC)

Current Rating C

Services

Interested parties are requested to make their own enquiries to the relevant authorities as to the availability of services.

Local Authority

Norwich City Council

Solicitors

Leathes Prior, 74 The Close, Norwich, NR1 4DR, Ref: Stephen Wilson, Tel: 01603 281012

Important Notice to Prospective Buyers:

We draw your attention to the Special Conditions of Sale within the Legal Pack, referring to other charges in addition to the purchase price which may become payable. Such costs may include Search Fees, reimbursement of Sellers costs and Legal Fees, and Transfer Fees amongst others.

Additional Fees

Administration Charge - 0.3% inc VAT of the purchase price, subject to a minimum of £954 inc VAT, payable on exchange of contracts.

Disbursements - Please see the legal pack for any disbursements listed that may become payable by the purchaser on completion.

View Larger Map

Disclaimer: The map preview provided above is for general guidance only and may not accurately reflect the exact location or surrounding buildings. Prospective buyers and interested parties are strongly advised to independently verify the precise location and surroundings before bidding.