Withdrawn | Lot 24

44 Norwich Road, Tacolneston, Norwich, Norfolk, NR16 1BY

Withdrawn

  • Cottage
  • 3 Bedrooms
  • Tenure: Freehold

Call the team on 01603 505 100 for more information

Auction Date

Wed 09/09/2020

Auction Time

11:00

Auction Venue

ONLINE

Detached three bedroom cottage with period features

This three bedroom country cottage is located in a private road close to the village centre. The property is vacant and ideal for use as a holiday home, investment or for owner occupation. The property has a wealth of exposed beams and original features. There is an established garden with a brick garage and the property has an oil fired central heating system. Tacolneston is approximately 14 miles from Norwich and 4 miles from Wymondham, the village has a primary school, village store, two public houses and a church

Tenure

Freehold

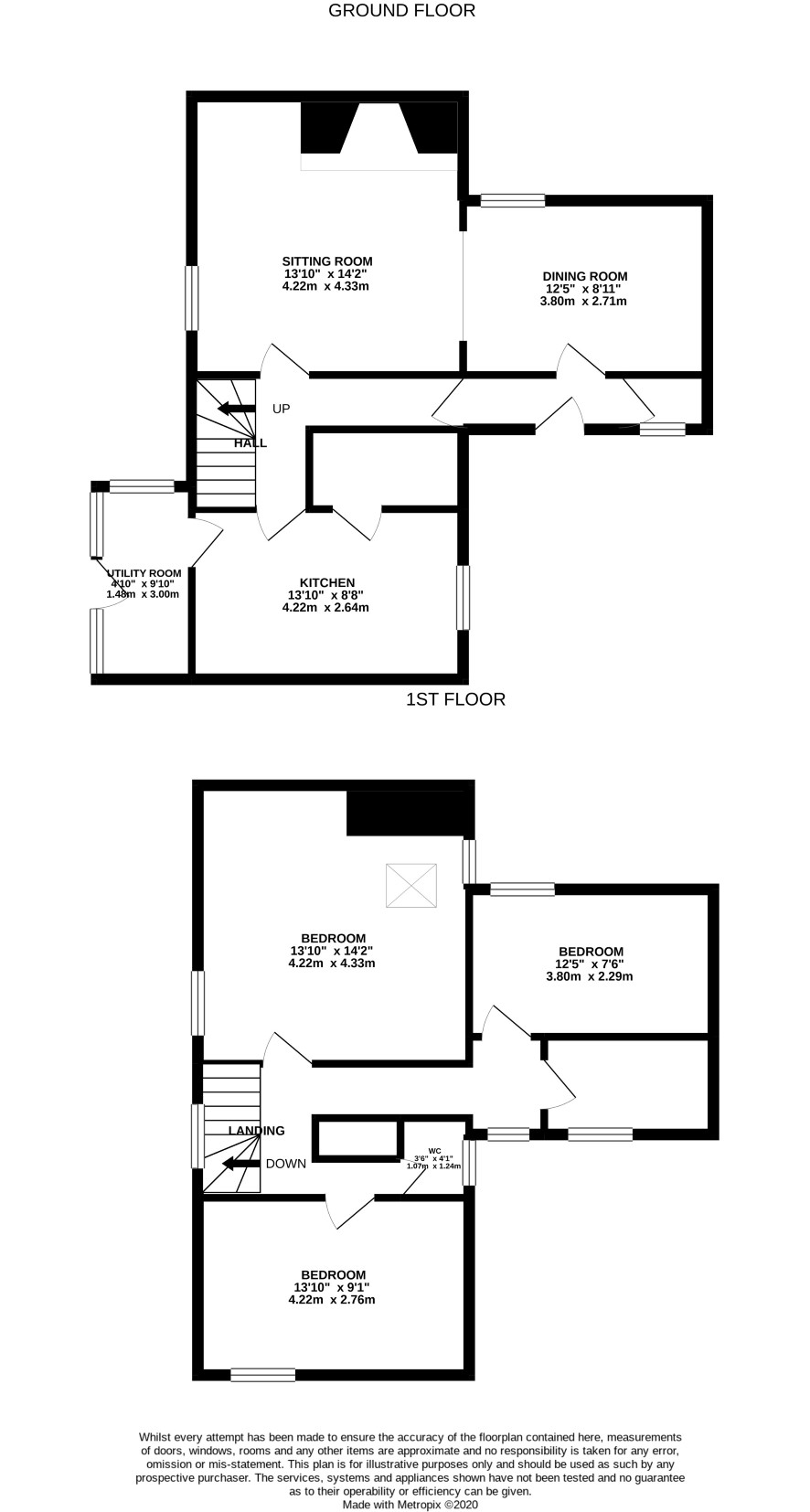
Ground Floor

Hall, lounge with inglenook fireplace, dining room, kitchen, utility room, cloakroom

First Floor

Landing, 3 bedrooms, bathroom, separate w.c.

Outside

Mainly lawned front garden, rear garden with access to store housing boiler and plumbing for washing machine, brick garage. Additional garden area with large parking bay adjacent to the drive.

Viewings

Open viewings can be scheduled - the next are on Monday 7 September - APPOINTMENT ESSENTIAL please contact the Norwich office on 01603 505100 to be allocated a time slot on the next viewing day

Energy Efficiency Rating (EPC)

Current Rating E

Services

Interested parties are requested to make their own enquiries to the relevant authorities as to the availability of services.

Local Authority

South Norfolk Council

Solicitors

Ison Harrison, Duke House, 54 Wellington Street, Leeds, LS12EE, Ref: Charles Knapman, Tel: 0113 2845000

Important Notice to Prospective Buyers:

We draw your attention to the Special Conditions of Sale within the Legal Pack, referring to other charges in addition to the purchase price which may become payable. Such costs may include Search Fees, reimbursement of Sellers costs and Legal Fees, and Transfer Fees amongst others.

Additional Fees

Administration Charge - 0.3% inc VAT of the purchase price, subject to a minimum of £954 inc VAT, payable on exchange of contracts.

Disbursements - Please see the legal pack for any disbursements listed that may become payable by the purchaser on completion.

View Larger Map

Disclaimer: The map preview provided above is for general guidance only and may not accurately reflect the exact location or surrounding buildings. Prospective buyers and interested parties are strongly advised to independently verify the precise location and surroundings before bidding.