For Sale By Auction | 11:00, 09 September 2020 | Lot 14

6 Bath Avenue, Dereham, Norfolk, NR20 3AP

Sold £141,000

  • End of Terrace House
  • 2 Bedrooms
  • Tenure: Freehold

Call the team on 01603 505 100 for more information

Auction Date

Wed 09/09/2020

Auction Time

11:00

Auction Venue

ONLINE

End terrace in sought after position requiring updating

This vacant two bedroom end terrace has been in the same family ownership for many years but now is requiring updating and redecoration to realise its full potential. The property has the benefit of a tucked away position with long rear garden, useful brick workshop, store and potential off road parking space. There is a useful basement room ideal for use as a playroom or work room. The property is located in a private road within walking distance of schools, shops and a regular public transport service.

Tenure

Freehold

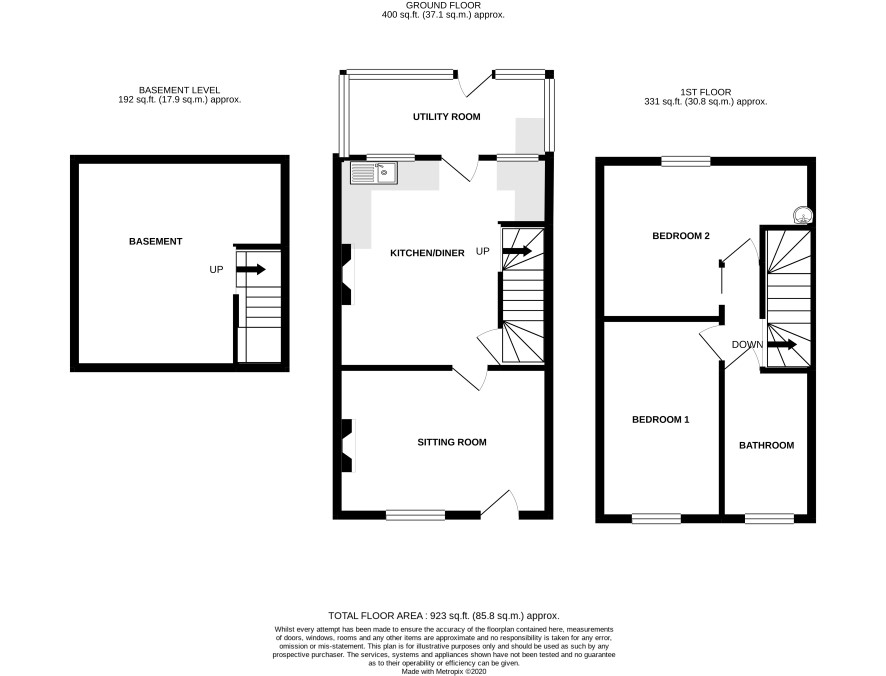
Ground Floor

Lounge, living room/kitchen, utility room stairs down to basement

First Floor

Landing, 2 bedrooms, bathroom

Outside

Neat front garden with potential off road parking space, side path to long rear garden with useful brick outbuildings and workshop

Viewings

Open viewings can be scheduled - the next are Wednesday 2 and Friday 4 September - APPOINTMENT ESSENTIAL please contact the Norwich office on 01603 505100 to be allocated a time slot on the next viewing day

Energy Efficiency Rating (EPC)

Current Rating E

Services

Interested parties are requested to make their own enquiries to the relevant authorities as to the availability of services.

Local Authority

Breckland Council

Solicitors

Spire Solicitors LLP, The Priory, Church Street, Dereham, NR19 1DW, Ref: Craig Ward, Tel: 01362692424

Important Notice to Prospective Buyers:

We draw your attention to the Special Conditions of Sale within the Legal Pack, referring to other charges in addition to the purchase price which may become payable. Such costs may include Search Fees, reimbursement of Sellers costs and Legal Fees, and Transfer Fees amongst others.

Additional Fees

Administration Charge - 0.3% inc VAT of the purchase price, subject to a minimum of £954 inc VAT, payable on exchange of contracts.

Disbursements - Please see the legal pack for any disbursements listed that may become payable by the purchaser on completion.

View Larger Map

Disclaimer: The map preview provided above is for general guidance only and may not accurately reflect the exact location or surrounding buildings. Prospective buyers and interested parties are strongly advised to independently verify the precise location and surroundings before bidding.