For Sale By Auction | 11:00, 08 December 2020 | Lot 65

14 Frampton Place, Boston, Lincolnshire, PE21 8EL

Sold £71,500

  • Terraced House
  • 3 Bedrooms
  • Tenure: Freehold

Call the team on 01733 889833 for more information

Auction Date

Tue 08/12/2020

Auction Time

11:00

Auction Venue

Livestream Auction

An end terrace 3 bedroom house ideal for a builder developer to complete

This 3 bedroom end terrace house has been gutted back to the brickwork ready for a scheme of works to renovate. It offers good sized accommodation with 3 bedrooms and bathroom space on the first floor and two receptions and a kitchen area. Boston is located north of Peterborough and offers a variety of shops and recreational facilities. The town also offers a main line rail link into Peterborough and Kings Cross.

Tenure

Freehold

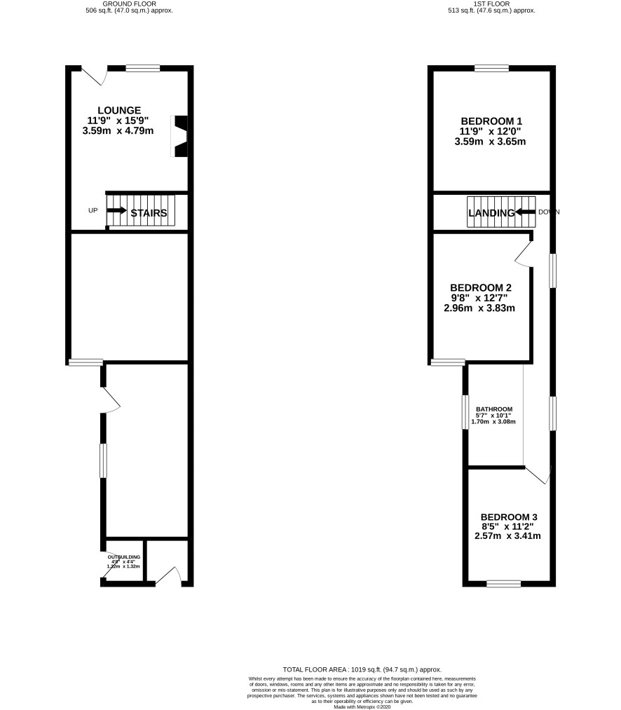
Ground Floor

Lounge, dining room, kitchen area (not fitted)

First Floor

3 bedrooms, bathroom (not fitted)

Outside

Yard area with two store sheds pedestrian side access.

Energy Efficiency Rating (EPC)

Current Rating E

Services

Interested parties are requested to make their own enquiries to the relevant authorities as to the availability of services.

Local Authority

Boston Borough Council

Solicitors

Morley Brown Howdens, 3 Main Ridge, Boston, PE21 6QH, Ref: Sarah Bills, Tel: 01205 364986

Important Notice to Prospective Buyers:

We draw your attention to the Special Conditions of Sale within the Legal Pack, referring to other charges in addition to the purchase price which may become payable. Such costs may include Search Fees, reimbursement of Sellers costs and Legal Fees, and Transfer Fees amongst others.

Additional Fees

Administration Charge - 0.3% inc VAT of the purchase price, subject to a minimum of £954 inc VAT, payable on exchange of contracts.

Disbursements - Please see the legal pack for any disbursements listed that may become payable by the purchaser on completion.

View Larger Map

Disclaimer: The map preview provided above is for general guidance only and may not accurately reflect the exact location or surrounding buildings. Prospective buyers and interested parties are strongly advised to independently verify the precise location and surroundings before bidding.