For Sale By Auction | 11:00, 08 December 2020 | Lot 24

Becclesgate House, 38 Old Becclesgate, Dereham, Norfolk, NR19 2BD

Sold £280,000

  • Semi-Detached House
  • 3 Bedrooms
  • Tenure: Freehold

Call the team on 01603 505 100 for more information

Auction Date

Tue 08/12/2020

Auction Time

11:00

Auction Venue

Livestream Auction

Period semi detached property in need of complete renovation

This Grade II listed semi-detached property, which we understand from the owner is one of the oldest buildings within the town, is now in need of complete renovation. Situated in the centre of Dereham, this former monastery is a stone’s throw away from the church and once had underground chambers connecting to the local church. The accommodation is divided over several levels and provides the opportunity of becoming a great family home located close to amenities. The property is accessed to the rear, over a shared driveway and has an extensive garden. Within the curtilage there is also a detached barn in need of some repair. This building offers a great space and subject to the necessary planning, could be converted providing further potential to the property. An exciting project for someone looking to restore an historic building,

Tenure

Freehold

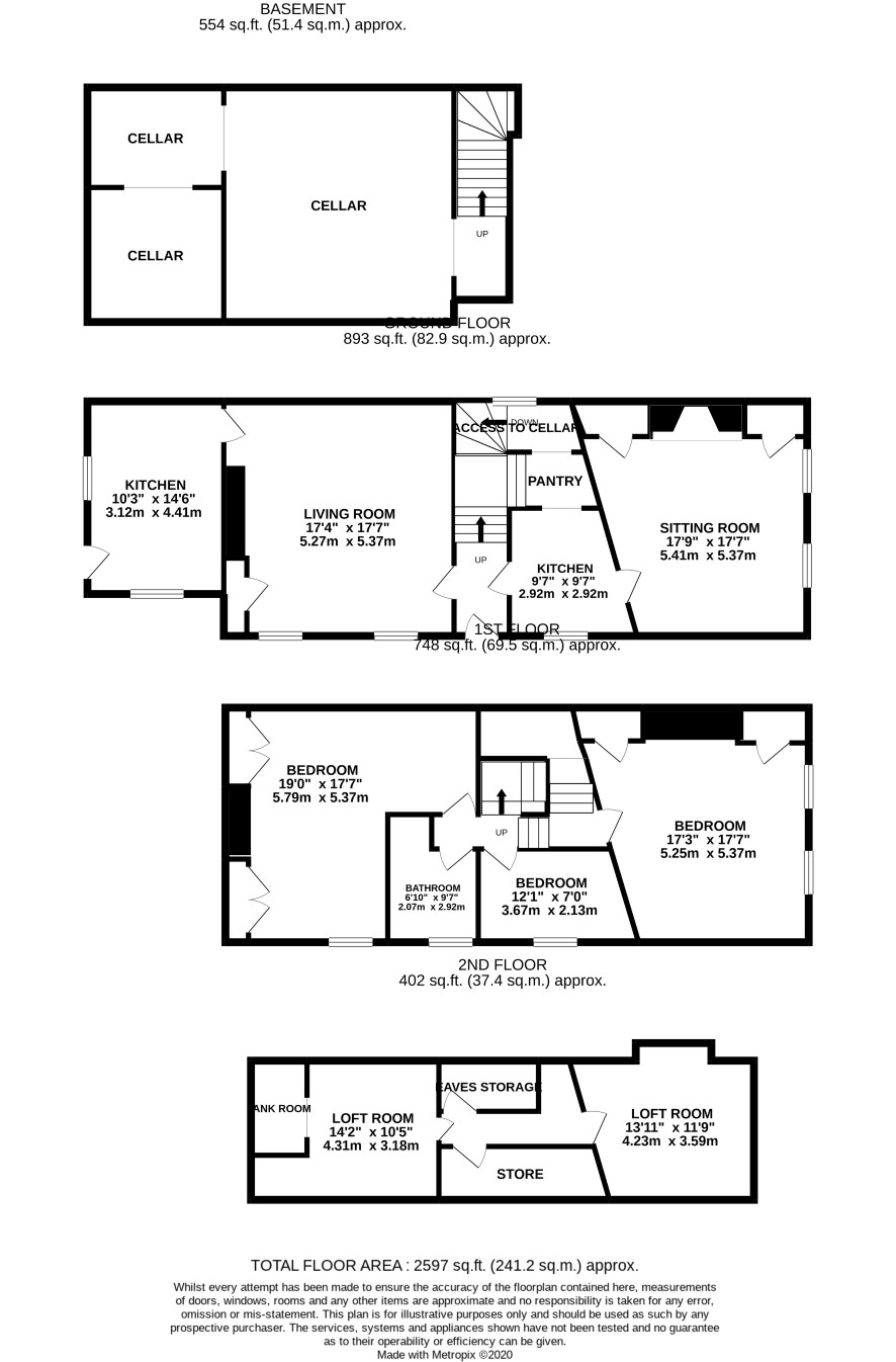
Interior

Hall, lounge, kitchen, larder, cellar, sitting room, utility room, landing, three bedrooms, bathroom, attic rooms

Exterior

Shared driveway, detached barn in need of restoration, extensive gardens, walled front garden overlooking the local church.

Viewings

Open viewings can be arranged - the next are on Monday 7 December - APPOINTMENT ESSENTIAL - please call the Norwich office to book your slot on the next viewing day - 01603 505100

Services

Interested parties are requested to make their own enquiries to the relevant authorities as to the availability of services.

Local Authority

Breckland Council

Solicitors

Butcher Andrews, 15 Market Place, Holt, NR25 6BE, Ref: Joseph Heavey, Tel: 01328 852826

Important Notice to Prospective Buyers:

We draw your attention to the Special Conditions of Sale within the Legal Pack, referring to other charges in addition to the purchase price which may become payable. Such costs may include Search Fees, reimbursement of Sellers costs and Legal Fees, and Transfer Fees amongst others.

Additional Fees

Buyer's Premium - £960 inc VAT payable on exchange of contracts.

Administration Charge - 0.3% inc VAT of the purchase price, subject to a minimum of £954 inc VAT, payable on exchange of contracts.

Disbursements - Please see the legal pack for any disbursements listed that may become payable by the purchaser on completion.

View Larger Map

Disclaimer: The map preview provided above is for general guidance only and may not accurately reflect the exact location or surrounding buildings. Prospective buyers and interested parties are strongly advised to independently verify the precise location and surroundings before bidding.