For Sale By Auction | 11:00, 08 December 2020 | Lot 62

3 Atkinson Street, Peterborough, PE1 5HW

Sold £140,500

  • End of Terrace House
  • 3 Bedrooms
  • Tenure: Freehold

Call the team on 01733 889833 for more information

Auction Date

Tue 08/12/2020

Auction Time

11:00

Auction Venue

Livestream Auction

A three bedroom end terrace house in need of improvement in the east of the city. Potential income of £9000 pa when renovated.

This three bedroom end terrace house is offered with vacant possession and is in need of up dating. It has a potential rental income of £750 pcm. The property has two receptions kitchen and shower room on the ground floor with three bedrooms on the first floor. Outside there is a garden at rear. Peterborough offers a wealth of shopping and recreational facilities together with a main line rai link into London Kings Cross

Tenure

Freehold

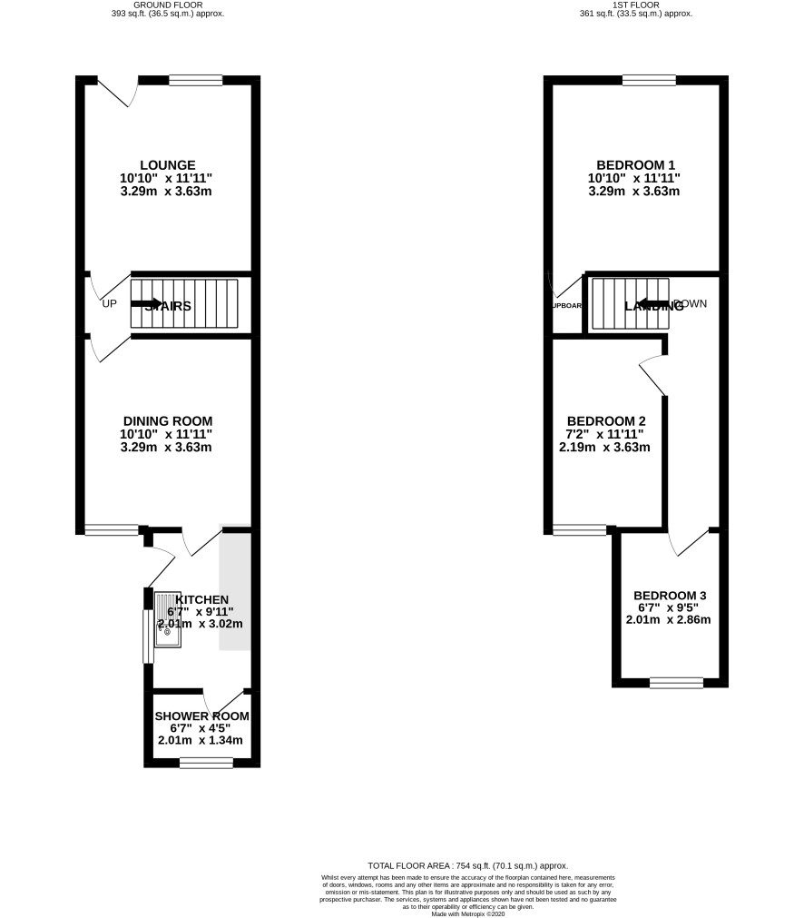
Ground Floor

Lounge, Dining Room, Kitchen and Shower Room

First Floor

Three Bedrooms

Outside

Garden at Rear

Energy Efficiency Rating (EPC)

Current Rating D

Services

Interested parties are requested to make their own enquiries to the relevant authorities as to the availability of services.

Local Authority

Peterborough City Council

Solicitors

Monika Haidar, Prince Frederick House, 37 Maddox Street, London, W1S 2PP, Tel: 01203 7510967

Important Notice to Prospective Buyers:

We draw your attention to the Special Conditions of Sale within the Legal Pack, referring to other charges in addition to the purchase price which may become payable. Such costs may include Search Fees, reimbursement of Sellers costs and Legal Fees, and Transfer Fees amongst others.

Additional Fees

Buyer's Premium - £900 inc VAT payable on exchange of contracts.

Administration Charge - 0.3% inc VAT of the purchase price, subject to a minimum of £954 inc VAT, payable on exchange of contracts.

Disbursements - Please see the legal pack for any disbursements listed that may become payable by the purchaser on completion.

View Larger Map

Disclaimer: The map preview provided above is for general guidance only and may not accurately reflect the exact location or surrounding buildings. Prospective buyers and interested parties are strongly advised to independently verify the precise location and surroundings before bidding.