For Sale By Auction | 11:00, 08 December 2020 | Lot 3

330 Dereham Road, New Costessey, Norwich, Norfolk, NR5 0SD

Sold £140,000

  • Semi-Detached House
  • 2 Bedrooms
  • Tenure: Freehold

Call the team on 01603 505 100 for more information

Auction Date

Tue 08/12/2020

Auction Time

11:00

Auction Venue

Livestream Auction

A two bedroom town house requiring updating and redecoration

An ex local authority two bedroom townhouse to be sold vacant and in need of updating and redecoration. The property has double glazing, gas central heating and benefits from a large garden with scope for off road parking. Potential exists for conversion into a three bedroom unit subject to obtaining appropriate consents. New Costessey is well served by a comprehensive range of shops and community facilities including a regular bus service into Norwich city center.

Tenure

Freehold

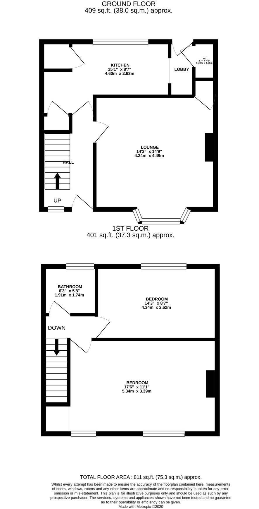
Ground Floor

Hall, lounge, kitchen, rear lobby, cloakroom

First Floor

Landing, two bedrooms, bathroom

Outside

Front garden with potential to create off road parking area. Long rear garden brick store.

Viewings

Open individual viewings can be arranged - the next are on Thursday 3 December - APPOINTMENT ESSENTIAL - please call the Norwich office on 01603 505100 to arrange the next available slot on the viewing day

Energy Efficiency Rating (EPC)

Current Rating B

Services

Interested parties are requested to make their own enquiries to the relevant authorities as to the availability of services.

Local Authority

South Norfolk Council

Solicitors

Spire Solicitors LLP, Holland Court, The Close, Norwich, NR1 4DY, Ref: Katharine Chatters, Tel: 01603 677023

Important Notice to Prospective Buyers:

We draw your attention to the Special Conditions of Sale within the Legal Pack, referring to other charges in addition to the purchase price which may become payable. Such costs may include Search Fees, reimbursement of Sellers costs and Legal Fees, and Transfer Fees amongst others.

Additional Fees

Buyer's Premium - £900 inc VAT payable on exchange of contracts.

Administration Charge - 0.3% inc VAT of the purchase price, subject to a minimum of £954 inc VAT, payable on exchange of contracts.

Disbursements - Please see the legal pack for any disbursements listed that may become payable by the purchaser on completion.

View Larger Map

Disclaimer: The map preview provided above is for general guidance only and may not accurately reflect the exact location or surrounding buildings. Prospective buyers and interested parties are strongly advised to independently verify the precise location and surroundings before bidding.