For Sale By Auction | 11:00, 08 December 2020 | Lot 5

173 Silver Road, Norwich, Norfolk, NR3 4TL

Sold £144,000

  • Terraced House
  • 2 Bedrooms
  • Tenure: Freehold

Call the team on 01603 505 100 for more information

Auction Date

Tue 08/12/2020

Auction Time

11:00

Auction Venue

Livestream Auction

North city terrace house requiring updating

This two bedroom mid terrace house is in reasonable order being gas centrally heated and double glazed but would benefit from some updating to realise its full potential. It is to be sold vacant and is in a popular area for rental or owner occupation. There is a pleasant garden to the rear and the house is most conveniently located within walking distance of the city centre, Mousehold Heath and a range of local amenities including a variety of shops.

Tenure

Freehold

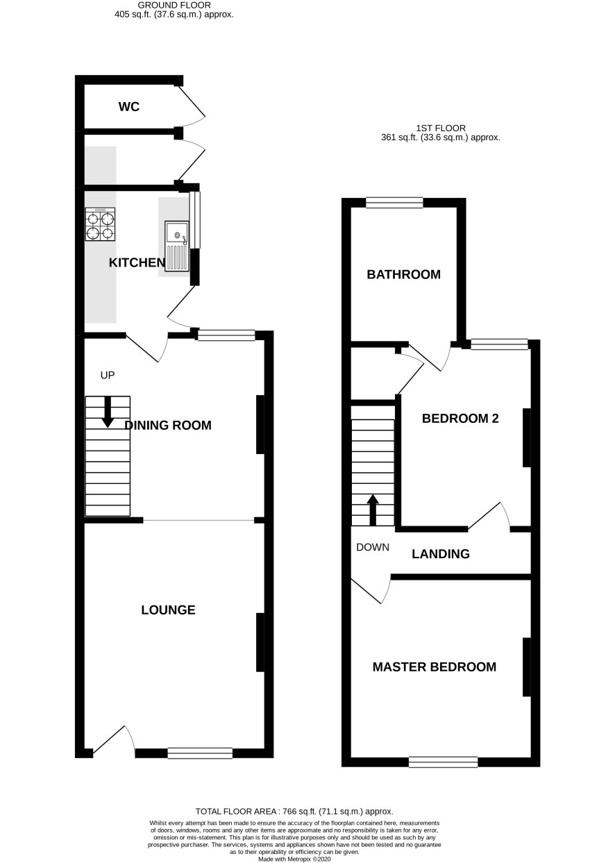
Ground Floor

Lounge, dining room, kitchen

First Floor

Landing, 2 bedrooms, bathroom

Outside

Small front garden, pleasant rear garden, outside wc and store shed

Viewings

Open viewings can be arranged - the next are on Friday 4 December - APPOINTMENT ESSENTIAL. Please call the Norwich office on 01603 505100 to book a slot on the next viewing day.

Energy Efficiency Rating (EPC)

Current Rating D

Services

Interested parties are requested to make their own enquiries to the relevant authorities as to the availability of services.

Local Authority

Norwich City Council

Solicitors

Cozens-Hardy LLP, Castle Chambers, Opie Street, Norwich, NR1 3DP, Ref: Claire Watson, Tel: 01603 724678

Important Notice to Prospective Buyers:

We draw your attention to the Special Conditions of Sale within the Legal Pack, referring to other charges in addition to the purchase price which may become payable. Such costs may include Search Fees, reimbursement of Sellers costs and Legal Fees, and Transfer Fees amongst others.

Additional Fees

Administration Charge - 0.3% inc VAT of the purchase price, subject to a minimum of £954 inc VAT, payable on exchange of contracts.

Disbursements - Please see the legal pack for any disbursements listed that may become payable by the purchaser on completion.

View Larger Map

Disclaimer: The map preview provided above is for general guidance only and may not accurately reflect the exact location or surrounding buildings. Prospective buyers and interested parties are strongly advised to independently verify the precise location and surroundings before bidding.