For Sale By Auction | 11:00, 08 December 2020 | Lot 17A

36 Station Road, Thetford, Norfolk, IP24 1AH

Sold £120,000

  • Detached House
  • 3 Bedrooms
  • Tenure: Freehold

Call the team on 01603 505 100 for more information

Auction Date

Tue 08/12/2020

Auction Time

11:00

Auction Venue

Livestream Auction

Detached house requiring modernisation

Modernisation has commenced on this three bedroom detached house but has not been completed. The property benefits from 2 reception rooms a 15ft kitchen and 3 bedrooms. The gardens are also in need of attention. Once modernised, the property would be ideal for investment or owner occupation.

Tenure

Freehold

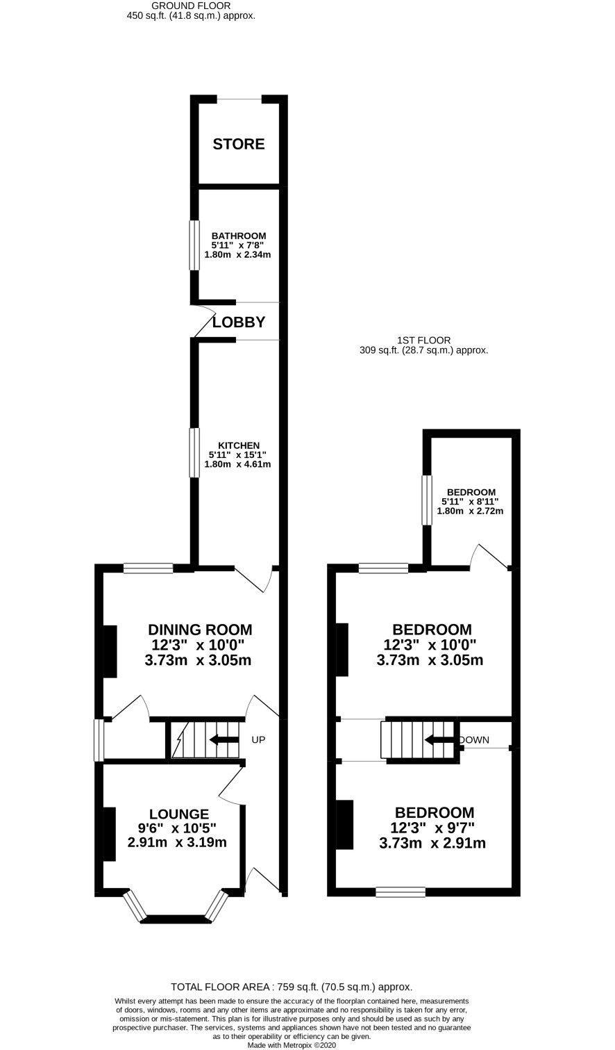
Ground Floor

Hall, lounge, dining room, kitchen, rear lobby, bathroom

First Floor

Landing, three bedrooms (3rd through 2nd)

Outside

Gardens in need of attention, attached store shed.

Please Note

There is a 14 day completion period on this property. Deposit payment to be paid by bank transfer or debit card only.

Viewings

Open viewings can be arranged - the next are Friday 27 November - APPOINTMENT ESSENTIAL - please call the Norwich office on 01603 505100 to arrange the next available slot on the viewing day

Energy Efficiency Rating (EPC)

Current Rating F

Services

Interested parties are requested to make their own enquiries to the relevant authorities as to the availability of services.

Local Authority

Kings Lynn and West Norfolk Borough Council

Solicitors

Wilsons, 20 The Grove, Ilkley, LS29 9EG, Ref: Oliver Taman, Tel: 01943 602998

Important Notice to Prospective Buyers:

We draw your attention to the Special Conditions of Sale within the Legal Pack, referring to other charges in addition to the purchase price which may become payable. Such costs may include Search Fees, reimbursement of Sellers costs and Legal Fees, and Transfer Fees amongst others.

Additional Fees

Buyer's Premium - £900 inc VAT payable on exchange of contracts.

Administration Charge - 0.3% inc VAT of the purchase price, subject to a minimum of £954 inc VAT, payable on exchange of contracts.

Disbursements - Please see the legal pack for any disbursements listed that may become payable by the purchaser on completion.

View Larger Map

Disclaimer: The map preview provided above is for general guidance only and may not accurately reflect the exact location or surrounding buildings. Prospective buyers and interested parties are strongly advised to independently verify the precise location and surroundings before bidding.