For Sale By Auction | 11:00, 08 December 2020 | Lot 71

25 Speke Street, Norwich, Norfolk, NR2 4HF

Sold £159,000

  • Terraced House
  • 2 Bedrooms
  • Tenure: Freehold

Call the team on 01603 505 100 for more information

Auction Date

Tue 08/12/2020

Auction Time

11:00

Auction Venue

Livestream Auction

Residential investment Let terrace house producing £7,140 pa

This well presented two bedroom mid terrace house is in good decorative order. It is currently let at £595 pcm (£7,140 pa) to a long standing tenant who has been in occupation for around six years. The property benefits from gas fired central heating and has double glazed windows. The property is located just over a mile west of the city centre near a comprehensive range of services and amenities and would make an ideal purchase for a buy to let investor.

Tenure

Freehold

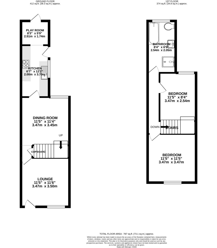
Ground Floor

Sitting room, dining room, kitchen, utility / play room

First Floor

Two bedrooms, bathroom

Outside

Small front garden area, rear bisected garden, wooden shed.

Viewings

This property is currently tenanted so viewings are limited - APPOINTMENT ESSENTIAL. Please call the Norwich office on 01603 505100 to book an appointment..

Energy Efficiency Rating (EPC)

Current Rating D

Services

Interested parties are requested to make their own enquiries to the relevant authorities as to the availability of services.

Local Authority

Norwich City Council

Solicitors

Hatch Brenner, 4 Theatre Street, Norwich, NR2 1QY, Ref: Sharmila Patel, Tel: 01603 660811

Important Notice to Prospective Buyers:

We draw your attention to the Special Conditions of Sale within the Legal Pack, referring to other charges in addition to the purchase price which may become payable. Such costs may include Search Fees, reimbursement of Sellers costs and Legal Fees, and Transfer Fees amongst others.

Additional Fees

Administration Charge - 0.3% inc VAT of the purchase price, subject to a minimum of £954 inc VAT, payable on exchange of contracts.

Disbursements - Please see the legal pack for any disbursements listed that may become payable by the purchaser on completion.

View Larger Map

Disclaimer: The map preview provided above is for general guidance only and may not accurately reflect the exact location or surrounding buildings. Prospective buyers and interested parties are strongly advised to independently verify the precise location and surroundings before bidding.