For Sale By Auction | 11:00, 10 February 2021 | Lot 52

114 Raglan Street, Lowestoft, Norfolk, NR32 2JT

Sold £87,500

  • Terraced House
  • 3 Bedrooms
  • Tenure: Freehold

Call the team on 01603 505 100 for more information

Auction Date

Wed 10/02/2021

Auction Time

11:00

Auction Venue

Livestream Auction

Residential investment currently let producing £6,564 pa

This three bedroom mid terraced property is in need of some updating. It is currently let at £547 per month (paid into two fortnightly payments) to a long standing tenant who has been in occupation for around 11 years. The property benefits from gas central heating and has double glazed windows. The property is located close to the town centre near to a comprehensive range of amenities. It would make an ideal purchase for an investor looking for an attractive yield.

Tenure

Freehold

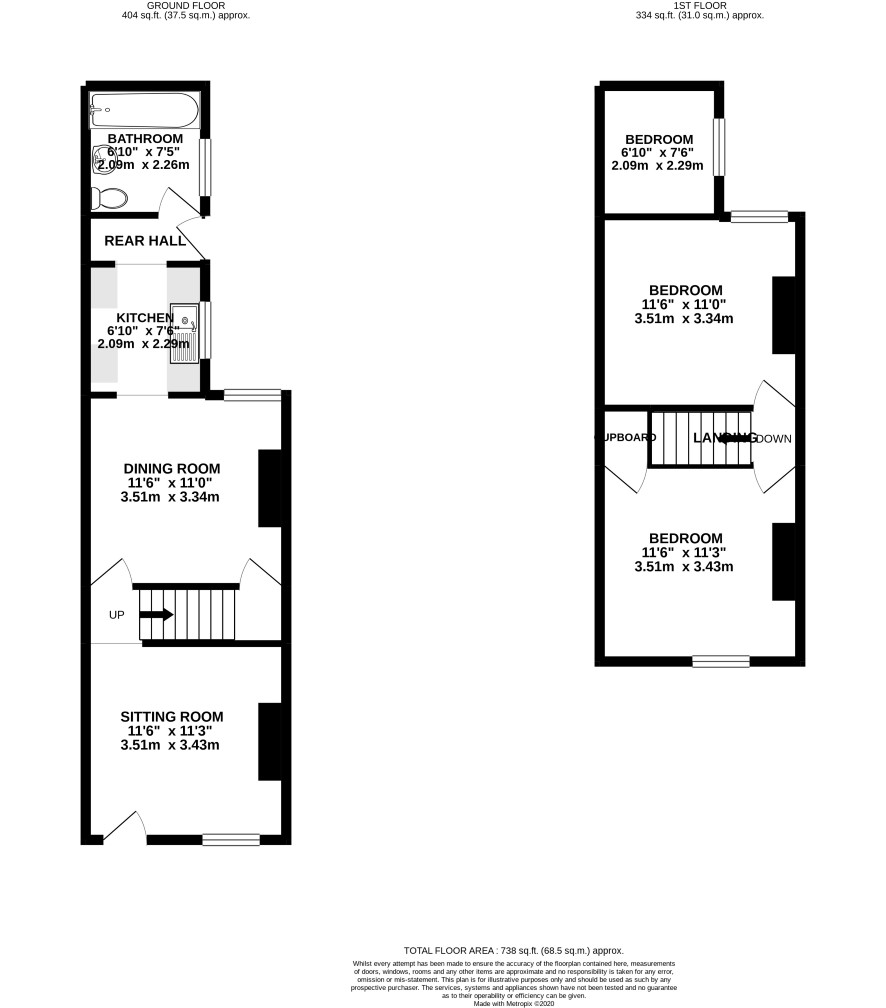
Ground Floor

Sitting Room, dining room, kitchen, rear hall, bathroom

First Floor

Landing, Three bedrooms (bedroom three leads off bedroom two)

Exterior

To the rear of the property there is an enclosed courtyard garden with rear access from the property.

Viewings

Please note that due to the current Covid-19 Restrictions we are unable to offer any viewings of this property.

Energy Efficiency Rating (EPC)

Current Rating TBC

Services

Interested parties are requested to make their own enquiries to the relevant authorities as to the availability of services.

Local Authority

East Suffolk Council. Tel: 0333 016 2000

Solicitors

Norton Legal, Unit 8 Beech Avenue, Taverham, Norwich, NR8 6HW, Ref: Tracy Guest, Tel: (01603) 864331

Important Notice to Prospective Buyers:

We draw your attention to the Special Conditions of Sale within the Legal Pack, referring to other charges in addition to the purchase price which may become payable. Such costs may include Search Fees, reimbursement of Sellers costs and Legal Fees, and Transfer Fees amongst others.

Additional Fees

Administration Charge - 0.3% inc VAT of the purchase price, subject to a minimum of £954 inc VAT, payable on exchange of contracts.

Disbursements - Please see the legal pack for any disbursements listed that may become payable by the purchaser on completion.

View Larger Map

Disclaimer: The map preview provided above is for general guidance only and may not accurately reflect the exact location or surrounding buildings. Prospective buyers and interested parties are strongly advised to independently verify the precise location and surroundings before bidding.