For Sale By Auction | 11:00, 10 February 2021 | Lot 60

20 Manning Road, Felixstowe, Suffolk, IP11 2AY

Sold £265,000

  • House (unspecified)
  • 7 Bedrooms
  • Tenure: Freehold

Call the team on 01473 558 888 for more information

Auction Date

Wed 10/02/2021

Auction Time

11:00

Auction Venue

Livestream Auction

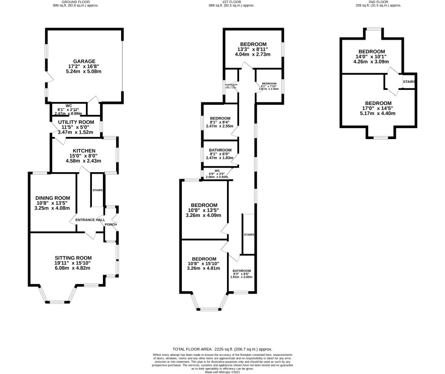
A substantial 7 bedroom residence with potential for alternative use

Situated just a stone's throw from the sea front is this imposing 2 reception room, 7 bedroom residence extending to over 2,200 sq ft on 3 floors and with an integral double garage. The property, which offers gas central heating but would benefit from improvement throughout, has most recently been utilised as a family home but with history as both an HMO and a care facility offers great potential for alternative use (subject to any relevant planning consent). Versatile opportunities of this nature are rarely presented to the market and in our opinion this could certainly prove to be a first class investment.

Tenure

Freehold

Energy Efficiency Rating (EPC)

Current Rating E

Services

Interested parties are requested to make their own enquiries to the relevant authorities as to the availability of services.

Local Authority

East Suffolk Council. Tel: 0333 016 2000

Solicitors

HKB Wiltshires, 21 Hall Quay, Great Yarmouth, NR30 1HN, Ref: Samantha Brannigan, Tel: 01493 855676

Important Notice to Prospective Buyers:

We draw your attention to the Special Conditions of Sale within the Legal Pack, referring to other charges in addition to the purchase price which may become payable. Such costs may include Search Fees, reimbursement of Sellers costs and Legal Fees, and Transfer Fees amongst others.

Additional Fees

Administration Charge - 0.3% inc VAT of the purchase price, subject to a minimum of £954 inc VAT, payable on exchange of contracts.

Disbursements - Please see the legal pack for any disbursements listed that may become payable by the purchaser on completion.

View Larger Map

Disclaimer: The map preview provided above is for general guidance only and may not accurately reflect the exact location or surrounding buildings. Prospective buyers and interested parties are strongly advised to independently verify the precise location and surroundings before bidding.