Postponed | Lot 10

Flats 1 To 5, 5 Clarence Road, Gorleston, Great Yarmouth, Norfolk, NR31 6DT

Postponed

  • House of Multiple Occupation
  • 5 Bedrooms
  • Tenure: Freehold

Call the team on 01603 505 100 for more information

Auction Date

Wed 10/02/2021

Auction Time

11:00

Auction Venue

Livestream Auction

An HMO opportunity in a desirable area of Gorleston producing £22,260pa

A great opportunity to acquire this period property granted with an HMO licence by Great Yarmouth Borough Council. This end terraced house is divided into 5, one bedroom flats, each have their own kitchen and all share bathroom facilities. There is a communal hall, landing and garden room providing access to the rear garden, w.c and outside store and a double garage measuring 4.9m x 5.5m with vehicle access from a private service road to the south of Clarence Road. The owner has owned the building since 1977 and has over the years maintained the building in accordance with regulations and all certificates can be obtained from the legal pack. All units are currently let, a couple to long standing tenants, and they are all on AST{squote}s producing £370 pcm inc bills.

Tenure

Freehold

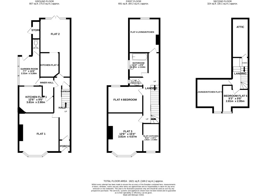
Ground Floor

Entrance porch, hall, Flat 1 living/bedroom, inner hall, flat 1 kitchen, garden room, w.c., Flat 2 living/bedroom with kitchen leading off.

First Floor

Landing, Flat 3 living/bedroom, flat 3 kitchen, Flat 4 bedroom, flat 4 open plan living/kitchen, bathroom, separate w.c.,

Second Floor

Landing, attic room, Flat 5 living/kitchen, flat 5 bedroom.

Outside

To the rear of the property there is a south facing garden with lawn and shrub beds. At the bottom of the garden there is a double garage measuring 4.9m x 5.5m with a personal door and an up and over door leading onto an unmade road to the south of Clarence Road.

Viewing

Individual viewings can be arranged - the next are Wednesday 27 January APPOINTMENT ESSENTIAL - please call the Norwich office on 01603 505100 to arrange the next available slot on the appropriate viewing day

Services

Interested parties are requested to make their own enquiries to the relevant authorities as to the availability of services.

Local Authority

Great Yarmouth Borough Council. Tel: 01493 856100

Solicitors

Norton Legal, Unit 8 Beech Avenue, Taverham, Norwich, NR8 6HW, Ref: Tracy Guest, Tel: (01603) 864331

Important Notice to Prospective Buyers:

We draw your attention to the Special Conditions of Sale within the Legal Pack, referring to other charges in addition to the purchase price which may become payable. Such costs may include Search Fees, reimbursement of Sellers costs and Legal Fees, and Transfer Fees amongst others.

Additional Fees

Administration Charge - 0.3% inc VAT of the purchase price, subject to a minimum of £954 inc VAT, payable on exchange of contracts.

Disbursements - Please see the legal pack for any disbursements listed that may become payable by the purchaser on completion.

View Larger Map

Disclaimer: The map preview provided above is for general guidance only and may not accurately reflect the exact location or surrounding buildings. Prospective buyers and interested parties are strongly advised to independently verify the precise location and surroundings before bidding.