Sold Prior | Lot 58

2 Museum Square, Wisbech, Cambridgeshire, PE13 1ES

Sold Prior

  • Terraced House
  • 4 Bedrooms
  • Tenure: Freehold

Call the team on 01733 889833 for more information

Auction Date

Wed 10/02/2021

Auction Time

11:00

Auction Venue

Livestream Auction

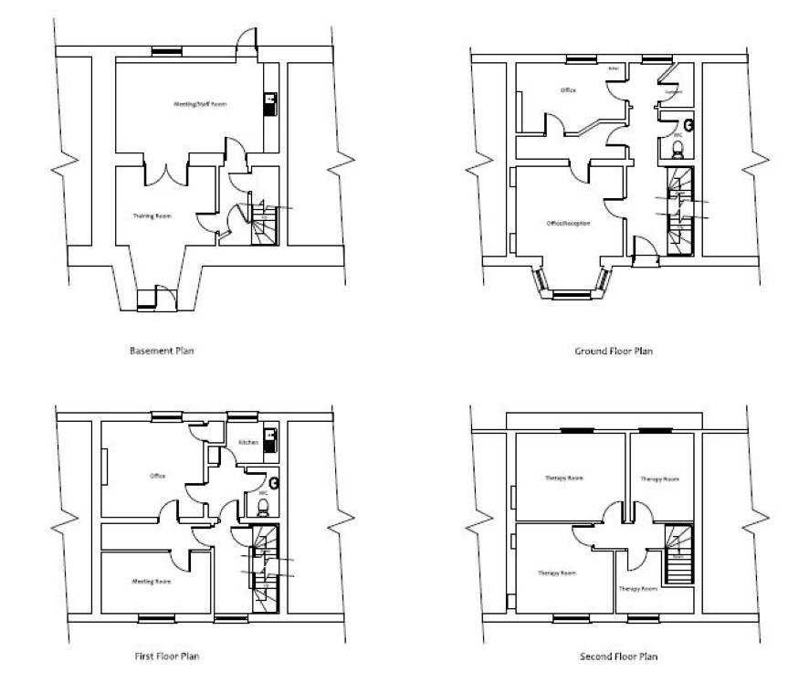
A mid terrace Georgian Grade II listed house with accommodation arranged over four floors with planning permission to restore to residential accommodation.

This Georgian town house situated in the historic quarter of Wisbech offers accommodation of 2200 sq ft (202 sq meters) in this Conservation Area. Planning permission and listed building consent was granted by Fenland District council ref F/YR19/07/14/F to revert from commercial to residential accommodation. The property has been used as offices, however internal stud walls can be removed to restore the original proportions of the house. The proposed accommodation will provide two receptions and a cloakroom on the ground floor, in the basement a kitchen and utility, first floor master bedroom with en-suite and a further bedroom and the second floor with two bedrooms and a family bathroom. Outside there is a delightful rear garden. Wisbech offers numerous shops and recreational facilities and a weekly market.

Tenure

Freehold

Proposed Ground Floor

Hall, lounge, dining room, cloakroom.

Proposed Basement

Kitchen, utility room.

Proposed First Floor

Master bedroom with en-suite, bedroom.

Proposed Second Floor

Two bedrooms, family bathroom.

Outside

Gardens and patio to rear.

Viewings

By appointment with the auctioneer on 01733 889833.

Services

Interested parties are requested to make their own enquiries to the relevant authorities as to the availability of services.

Local Authority

Fenland District Council. Tel: 01354 654321

Solicitors

Howells Solictors, 4 Langdon House, Langdon Road, Swansea, SA1 8QY, Ref: Aimee Thomas, Tel: 01792 657470

Important Notice to Prospective Buyers:

We draw your attention to the Special Conditions of Sale within the Legal Pack, referring to other charges in addition to the purchase price which may become payable. Such costs may include Search Fees, reimbursement of Sellers costs and Legal Fees, and Transfer Fees amongst others.

Additional Fees

Buyer's Premium - £600 inc VAT payable on exchange of contracts.

Administration Charge - 0.3% inc VAT of the purchase price, subject to a minimum of £954 inc VAT, payable on exchange of contracts.

Disbursements - Please see the legal pack for any disbursements listed that may become payable by the purchaser on completion.

View Larger Map

Disclaimer: The map preview provided above is for general guidance only and may not accurately reflect the exact location or surrounding buildings. Prospective buyers and interested parties are strongly advised to independently verify the precise location and surroundings before bidding.