For Sale By Auction | 11:00, 24 March 2021 | Lot 21

92 Norwich Road, Stoke Holy Cross, Norwich, Norfolk, NR14 8QJ

Sold £265,000

  • Semi-Detached House
  • 2 Bedrooms
  • Tenure: Freehold

Call the team on 01603 505 100 for more information

Auction Date

Wed 24/03/2021

Auction Time

11:00

Auction Venue

Livestream Auction

Semi detached cottage on large plot offering potential

The property is known as 92 Hall View due to its view of Dunston Hall in the distance. It comprises of a two bedroom period semi detached cottage. It has been in the same family for around 60 years and is now to be sold with vacant possession. It occupies a large plot, especially to the side and rear, extending to around 0.2 of an acre stms, offering ample space to extend or develop subject to the necessary consents. The property is double glazed and has gas fired central heating, however does require modernisation to realise its full potential. Stoke Holy Cross is a highly popular village lying around five miles south of Norwich and around three miles west of Poringland.. The well known {quote}Wildebeest{quote} restaurant is close by. On instruction of executors

Tenure

Freehold

Description:

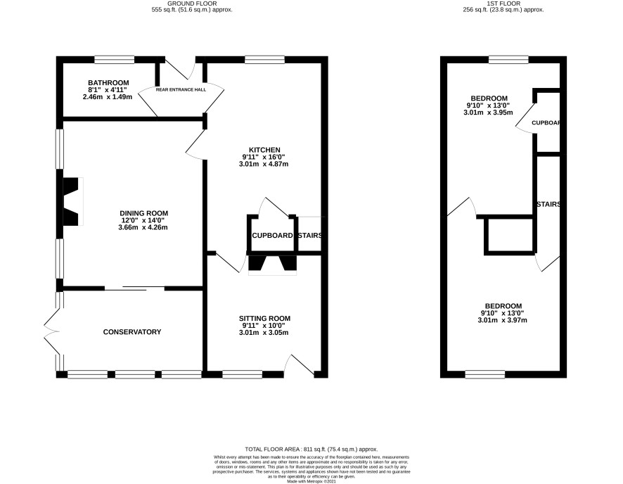
Ground Floor

Sitting room, dining room, kitchen, conservatory, bathroom, rear entrance hall

First Floor

Two bedrooms.

Outside

Front garden, detached garage and outbuildings to rear, off road parking, greenhouse, large rear garden.

Viewings

Individual 15-minute appointments can be arranged - the final ones are Monday 22 March - BOOKING ESSENTIAL - Please call the Norwich office on 01603 505100 to book the next available slot

Energy Efficiency Rating (EPC)

Current Rating D

Services

Interested parties are requested to make their own enquiries to the relevant authorities as to the availability of services.

Local Authority

South Norfolk Council. Tel: 01508 533701

Solicitors

Mills & Reeve, Botanic House, 98-100 Hills Road, Cambridge, CB2 1PH, Ref: Christina Wilderspin, Tel: (01223) 222294 ext 2294

Important Notice to Prospective Buyers:

We draw your attention to the Special Conditions of Sale within the Legal Pack, referring to other charges in addition to the purchase price which may become payable. Such costs may include Search Fees, reimbursement of Sellers costs and Legal Fees, and Transfer Fees amongst others.

Additional Fees

Administration Charge - 0.3% inc VAT of the purchase price, subject to a minimum of £1140 inc VAT, payable on exchange of contracts.

Disbursements - Please see the legal pack for any disbursements listed that may become payable by the purchaser on completion.

View Larger Map

Disclaimer: The map preview provided above is for general guidance only and may not accurately reflect the exact location or surrounding buildings. Prospective buyers and interested parties are strongly advised to independently verify the precise location and surroundings before bidding.