For Sale By Auction | 11:00, 24 March 2021 | Lot 4

154 Aylsham Road, Norwich, Norfolk, NR3 2HD

Sold £151,000

  • Terraced House
  • 2 Bedrooms
  • Tenure: Freehold

Call the team on 01603 505 100 for more information

Auction Date

Wed 24/03/2021

Auction Time

11:00

Auction Venue

Livestream Auction

Two one bedroom flats producing £10,200 pa (£850 pcm)

This bay fronted terrace house has been converted into two self contained one bedroom flats. Both flats are let to established tenants producing a combined income of £10,200 pa. Some updating is required but the properties are independently heated and have part sealed unit double glazing. Laying approximately one mile north of Norwich centre the property is ideally situated for access into the city and to a wide range of shops and amenities nearby.

Tenure

Freehold

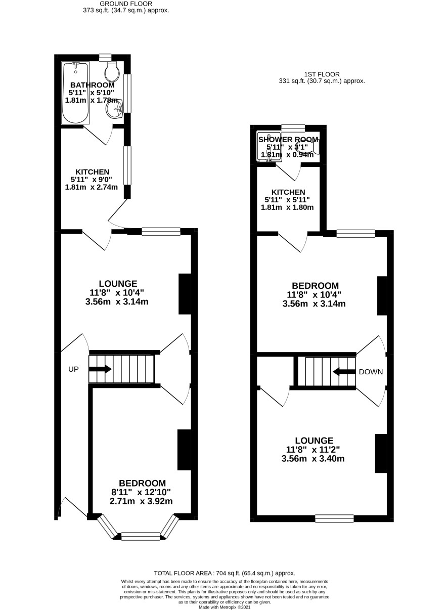
Accommodation

Shared hallway

Ground Floor Flat

Lounge, bedroom, kitchen, bathroom.

First Floor Flat

Lounge, bedroom, kitchen, shower room.

Outside

Small front garden, the rear garden is used by the ground floor flat.

Energy Efficiency Rating (EPC)

Current Rating D

Services

Interested parties are requested to make their own enquiries to the relevant authorities as to the availability of services.

Local Authority

Norwich City Council. Tel: 0344 980 3333

Solicitors

Leathes Prior, 74 The Close, Norwich, NR1 4DR, Ref: Liz Coleman, Tel: 01603 281012

Important Notice to Prospective Buyers:

We draw your attention to the Special Conditions of Sale within the Legal Pack, referring to other charges in addition to the purchase price which may become payable. Such costs may include Search Fees, reimbursement of Sellers costs and Legal Fees, and Transfer Fees amongst others.

Additional Fees

Administration Charge - 0.3% inc VAT of the purchase price, subject to a minimum of £1140 inc VAT, payable on exchange of contracts.

Disbursements - Please see the legal pack for any disbursements listed that may become payable by the purchaser on completion.

View Larger Map

Disclaimer: The map preview provided above is for general guidance only and may not accurately reflect the exact location or surrounding buildings. Prospective buyers and interested parties are strongly advised to independently verify the precise location and surroundings before bidding.