For Sale By Auction | 11:00, 24 March 2021 | Lot 7

20 Caernarvon Road, Norwich, Norfolk, NR2 3HX

Sold £214,000

  • Terraced House
  • 3 Bedrooms
  • Tenure: Freehold

Call the team on 01603 505 100 for more information

Auction Date

Wed 24/03/2021

Auction Time

11:00

Auction Venue

Livestream Auction

Freshly decorated terrace house in the Golden Triangle, ready for occupation

Located in a highly sought after position, this three bedroom terrace house has been owned by the same family for over 70 years but is now vacant and ready for a new tenant or owner occupier. The property is double glazed, has gas fired central heating and the whole house has been freshly decorated and carpeted. There is a pleasant garden to the rear and the house is located within a short walk of local shops, schools and well placed for access to the University of East Anglia and the Norfolk and Norwich University Hospital.

Tenure

Freehold

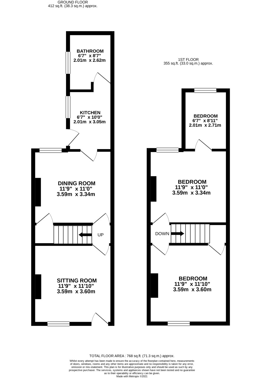
Ground Floor

Lounge, dining room, kitchen, bathroom.

First Floor

Landing 3 bedrooms (third through second).

Outside

Small front garden, well proportioned rear garden.

Viewings

Individual 15-minute appointments can be arranged - the final ones are Tuesday 23 March - BOOKING ESSENTIAL - Please call the Norwich office on 01603 505100 to book the next available slot

Energy Efficiency Rating (EPC)

Current Rating C

Services

Interested parties are requested to make their own enquiries to the relevant authorities as to the availability of services.

Local Authority

Norwich City Council. Tel: 0344 980 3333

Solicitors

Spire Solicitors LLP, 5-7 Church Street, Wymondham, NR18 0PP, Ref: Peter Cook, Tel: 01953 606351

Important Notice to Prospective Buyers:

We draw your attention to the Special Conditions of Sale within the Legal Pack, referring to other charges in addition to the purchase price which may become payable. Such costs may include Search Fees, reimbursement of Sellers costs and Legal Fees, and Transfer Fees amongst others.

Additional Fees

Administration Charge - 0.3% inc VAT of the purchase price, subject to a minimum of £1140 inc VAT, payable on exchange of contracts.

Disbursements - Please see the legal pack for any disbursements listed that may become payable by the purchaser on completion.

View Larger Map

Disclaimer: The map preview provided above is for general guidance only and may not accurately reflect the exact location or surrounding buildings. Prospective buyers and interested parties are strongly advised to independently verify the precise location and surroundings before bidding.