For Sale By Auction | 11:00, 05 May 2021 | Lot 56

2 St. Georges Plain, Great Yarmouth, Norfolk, NR30 2PH

Sold £110,000

  • End of Terrace House
  • 2 Bedrooms
  • Tenure: Freehold

Call the team on 01603 505 100 for more information

Auction Date

Wed 05/05/2021

Auction Time

11:00

Auction Venue

Livestream Auction

Charming Grade II Listed terraced house

This quaint Grade II listed two bedroom terraced house is well located overlooking St.Georges theatre in the centre of the town. The accommodation is spread over three floors with a range of layout options. The property was until recently let at £550 pcm (£6,600 pa) and is now to be sold with vacant possession. The property has electric heating and a range of period features. It would be ideal for the owner occupier or investor and viewing is highly recommended.

Tenure

Freehold

Description:

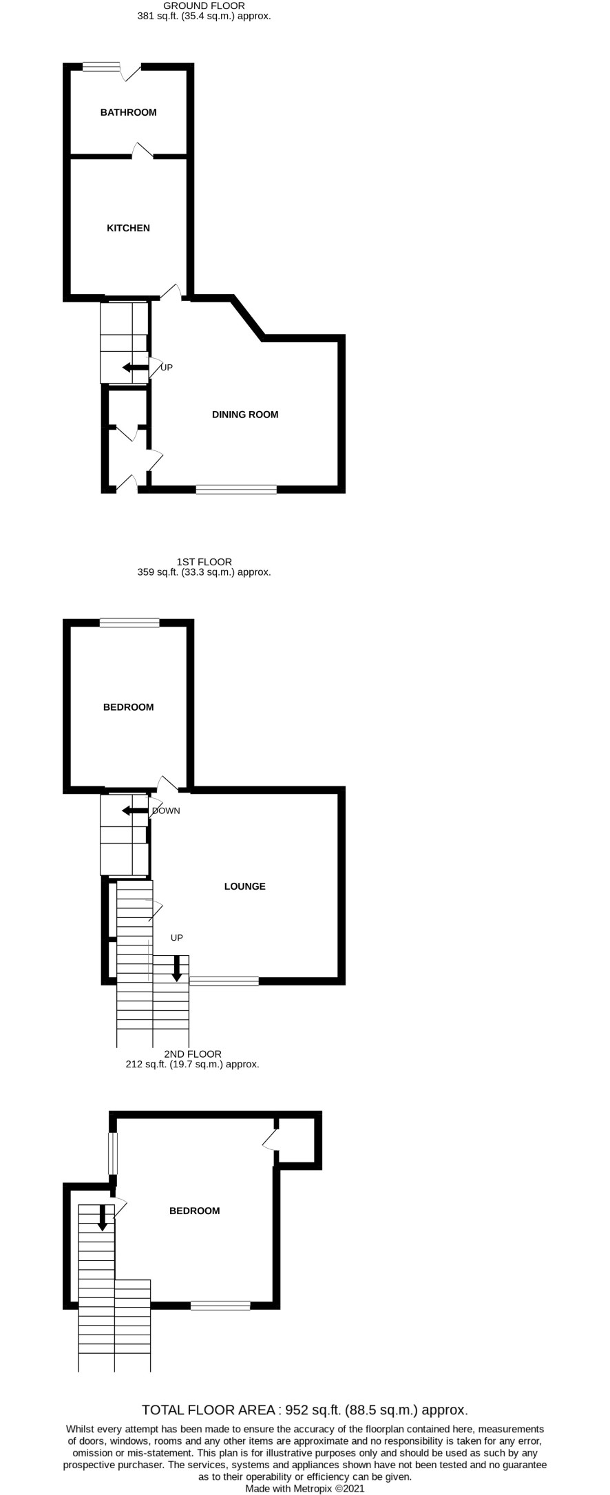
Ground Floor

Entrance lobby, dining room, kitchen, bathroom.

First Floor

Lounge, bedroom

Second Floor

Attic bedroom

Outside

To the front is a small walled forecourt. To the rear is an enclosed service passage that serves the terrace on to Deneside.

Viewings

Individual appointments can be arranged - the next are Wednesday 28 April - BOOKING ESSENTIAL - Please call the Norwich office on 01603 505100 to book the next available day

Energy Efficiency Rating (EPC)

Current Rating n/a as listed

Services

Interested parties are requested to make their own enquiries to the relevant authorities as to the availability of services.

Local Authority

Great Yarmouth Borough Council. Tel: 01493 856100

Solicitors

Norton Peskett , 18 Church Plain, Great Yarmouth, NR30 1NF, Ref: Matthew Breeze, Tel: 01493 849200

Important Notice to Prospective Buyers:

We draw your attention to the Special Conditions of Sale within the Legal Pack, referring to other charges in addition to the purchase price which may become payable. Such costs may include Search Fees, reimbursement of Sellers costs and Legal Fees, and Transfer Fees amongst others.

Additional Fees

Administration Charge - 0.3% inc VAT of the purchase price, subject to a minimum of £1140 inc VAT, payable on exchange of contracts.

Disbursements - Please see the legal pack for any disbursements listed that may become payable by the purchaser on completion.

View Larger Map

Disclaimer: The map preview provided above is for general guidance only and may not accurately reflect the exact location or surrounding buildings. Prospective buyers and interested parties are strongly advised to independently verify the precise location and surroundings before bidding.