For Sale By Auction | 11:00, 05 May 2021 | Lot 58

161 Northgate Street, Great Yarmouth, Norfolk, NR30 1BY

Sold £86,000

  • Residential Development
  • Tenure: Freehold

Call the team on 01603 505 100 for more information

Auction Date

Wed 05/05/2021

Auction Time

11:00

Auction Venue

Livestream Auction

A three storey building with residential consent and redevelopment potential

This former public house and shop has extensive accommodation ranging over three floor. It is currently classed as residential accommodation and extends to over 2,500sq/ft. It is now ready for reconfiguration or redevelopment. The property retains original features and would make a useful commercial space, restaurant, bar, hairdressers, art gallery or could be converted to a stylish single dwelling or into flats, all subject to the relevant permissions. The property is in a mixed area of residential and commercial property approximately half a mile from Great Yarmouth town centre and sea front.

Tenure

Freehold

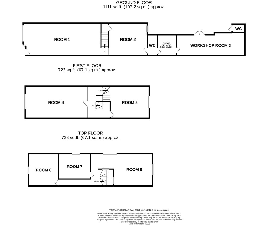
Ground Floor

Three rooms, office, internal and external wc's

First Floor

Landing, 2 rooms

Second Floor

Landing, 3 rooms

Outside

Small rear courtyard

Viewings

Individual appointments can be arranged - the next are Wednesday 28 April - BOOKING ESSENTIAL - Please call the Norwich office on 01603 505100 to book the next available slot

Energy Efficiency Rating (EPC)

Current Rating G

Services

Interested parties are requested to make their own enquiries to the relevant authorities as to the availability of services.

Local Authority

Great Yarmouth Borough Council. Tel: 01493 856100

Solicitors

Chamberlins, 4 Crown Road, Great Yarmouth, NR30 2JP, Ref: Paul Ward, Tel: 01493 720019

Important Notice to Prospective Buyers:

We draw your attention to the Special Conditions of Sale within the Legal Pack, referring to other charges in addition to the purchase price which may become payable. Such costs may include Search Fees, reimbursement of Sellers costs and Legal Fees, and Transfer Fees amongst others.

Additional Fees

Buyer's Premium - £600 inc VAT payable on exchange of contracts.

Administration Charge - 0.3% inc VAT of the purchase price, subject to a minimum of £1140 inc VAT, payable on exchange of contracts.

Disbursements - Please see the legal pack for any disbursements listed that may become payable by the purchaser on completion.

View Larger Map

Disclaimer: The map preview provided above is for general guidance only and may not accurately reflect the exact location or surrounding buildings. Prospective buyers and interested parties are strongly advised to independently verify the precise location and surroundings before bidding.