For Sale By Auction | 11:00, 05 May 2021 | Lot 39

30 Harecroft Gardens, Kings Lynn, Norfolk, PE30 2BY

Sold £60,000

  • Maisonette
  • 2 Bedrooms
  • Tenure: Leasehold

Call the team on 01733 889833 for more information

Auction Date

Wed 05/05/2021

Auction Time

11:00

Auction Venue

Livestream Auction

A two bedroom first floor maisonette requiring modernisation

This two bedroom first floor maisonette requires modernisation and is offered with vacant possession with the benefit of a garden to the rear. The property is located close to Kings Lynn town centre with its range of shopping facilities, bus station and mainline railway station to Cambridge and London Kings Cross.

Tenure

Leasehold

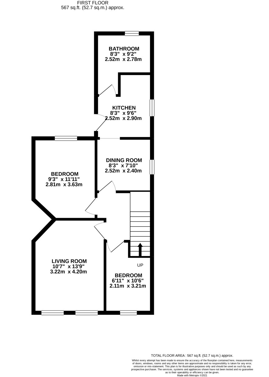
Accommodation

Stairs leading to first floor landing, living room, dining area, kitchen, two bedrooms, bathroom

Outside

Garden to rear.

Lease Details

Term - 99 years from 25th December 1976 (55 years remaining).

Energy Efficiency Rating (EPC)

Current Rating - please refer to Legal Pack

Services

Interested parties are requested to make their own enquiries to the relevant authorities as to the availability of services.

Local Authority

Kings Lynn and West Norfolk Borough Council. Tel: 01553 616200

Solicitors

Hawkins Ryan, 19 Tuesday Market Place, Kings Lynn, PE30 1JW, Ref: Colin Bosher, Tel: 01553669070

Important Notice to Prospective Buyers:

We draw your attention to the Special Conditions of Sale within the Legal Pack, referring to other charges in addition to the purchase price which may become payable. Such costs may include Search Fees, reimbursement of Sellers costs and Legal Fees, and Transfer Fees amongst others.

Additional Fees

Administration Charge - 0.3% inc VAT of the purchase price, subject to a minimum of £1140 inc VAT, payable on exchange of contracts.

Disbursements - Please see the legal pack for any disbursements listed that may become payable by the purchaser on completion.

View Larger Map

Disclaimer: The map preview provided above is for general guidance only and may not accurately reflect the exact location or surrounding buildings. Prospective buyers and interested parties are strongly advised to independently verify the precise location and surroundings before bidding.