Sold Prior | Lot 37

127 London Road North, Lowestoft, Suffolk, NR32 1LZ

Sold Prior

  • Residential Development
  • Tenure: Freehold

Call the team on 01603 505 100 for more information

Auction Date

Wed 05/05/2021

Auction Time

11:00

Auction Venue

Livestream Auction

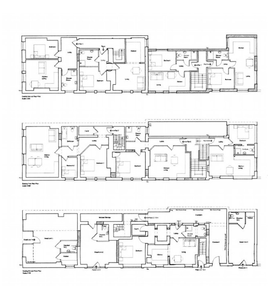
A substantial former retail premises with detailed consent to convert into three shops and eight flats

This former high street shop is now vacant but benefits from a sympathetic redevelopment scheme which allows for conversion into three lock up shops and eight self contained one and two bedroom flats. The development would be ideal for the experienced builder or investor looking for a high yielding investment. The premises has a frontage onto London Road North which is very central to the town centre and within walking distance of the railway station and sea front.

Tenure

Freehold

Planning Consent

Planning permission was granted May 2020 for three shops and eight flats. Plans and copies of related documents can be found on the East Suffolk Coastal website Ref DC/20/0607/FUL

Current Accommodation

Ground Floor: Shop and offices, access to cellar, wc, rear yard First Floor: showrooms and offices, Second Floor: two bedroom flat.

Proposed Accommodation

Ground Floor: three lock up shops, one bedroom flat, Lobby and access to cellar and upper floors. First Floor: two one bedroom flats and a two bedroom flat. Second Floor: four one bedroom flats.

Viewing

Open Viewing has been scheduled for Wednesday 28 April - BOOKING APPOINTMENT ESSENTIAL - please call us on 01603 505100 to be allocated a time slot.

Energy Efficiency Rating (EPC)

Current Rating C

Services

Interested parties are requested to make their own enquiries to the relevant authorities as to the availability of services.

Local Authority

Waveney District Council. Tel: 01502 562111

Solicitors

Howes Percival, Flint Buildings, 1 Bedding Lane, Norwich, NR3 1RG, Ref: Joanna Nicholls, Tel: 01603 762103

Important Notice to Prospective Buyers:

We draw your attention to the Special Conditions of Sale within the Legal Pack, referring to other charges in addition to the purchase price which may become payable. Such costs may include Search Fees, reimbursement of Sellers costs and Legal Fees, and Transfer Fees amongst others.

Additional Fees

Administration Charge - 0.3% inc VAT of the purchase price, subject to a minimum of £1140 inc VAT, payable on exchange of contracts.

Disbursements - Please see the legal pack for any disbursements listed that may become payable by the purchaser on completion.

View Larger Map

Disclaimer: The map preview provided above is for general guidance only and may not accurately reflect the exact location or surrounding buildings. Prospective buyers and interested parties are strongly advised to independently verify the precise location and surroundings before bidding.