Sold Prior | Lot 18

Flats 1-5, 135 London Road South, Lowestoft, Suffolk, NR33 0AX

Sold Prior

  • Terraced House
  • 8 Bedrooms
  • Tenure: Freehold

Call the team on 01603 505 100 for more information

Auction Date

Wed 28/07/2021

Auction Time

11:00

Auction Venue

Livestream Auction

An investment opportunity to acquire a freehold of five flats situated on the east coast in the seaside resort of Lowestoft.

This freehold property has been converted into five flats comprising of two one bedroom flats and three two bedroom flats. The flats are divided over five floors. The one bedroom basement flat is currently in the process of being refurbished and is vacant. The ground floor flat is a one bedroom rented on an AST achieving £400pcm. The first floor offers a two bedroom flat on an AST achieving £525pcm. The second floor offers a two bedroom flat on an AST achieving £525pcm. The attic offers a two bedroom flat on an AST achieving £500pcm. This is a great opportunity for an investor or with the necessary planning the flats could be divided. Fully occupied the potential income is £28,200pa.

Tenure

Freehold

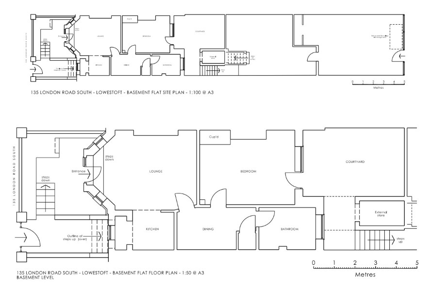
Basement - Flat 1

Private entrance, lounge, kitchen, hallway, bedroom, bathroom, private garden

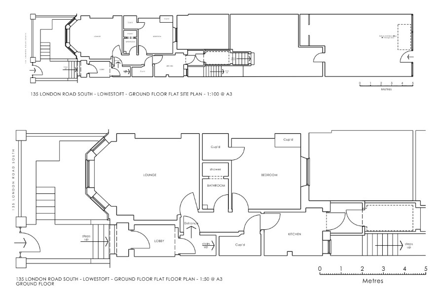
Ground Floor - Flat 2

Shared entrance and hallway, lounge, bathroom, bedroom, kitchen, private garden

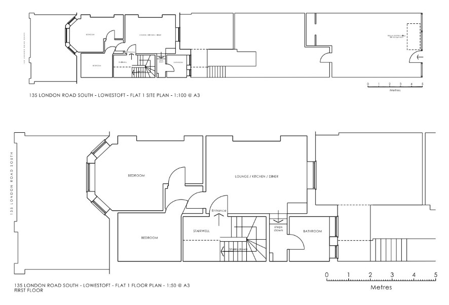
First Floor - Flat 3

Landing, lounge / kitchen, bathroom, two bedrooms.

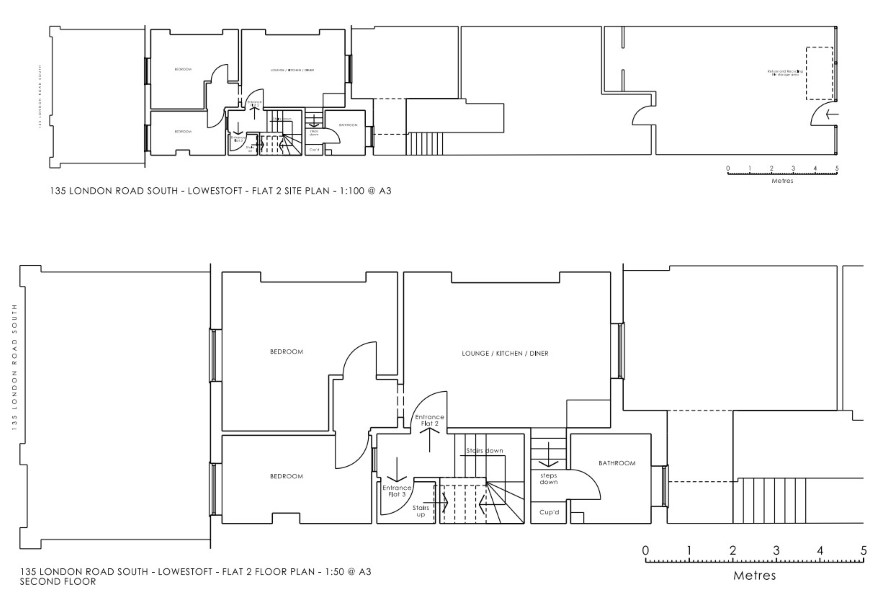
Second Floor - Flat 4

Landing, lounge / kitchen, bathroom, two bedrooms.

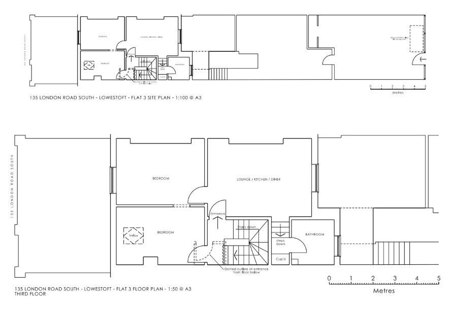
Third Floor - Flat 5

Accessed from second floor.Private lobby, stairs to landing, lounge / kitchen bathroom, two bedrooms.

Outside

Basement and ground floor flats have their own private gardens. There is a communal garden for the flats on the first, second, and third floors.

Energy Efficiency Rating (EPC)

Current Rating D, E

Services

Interested parties are requested to make their own enquiries to the relevant authorities as to the availability of services.

Local Authority

East Suffolk Council. Tel: 0333 016 2000

Solicitors

Norton Legal, Unit 8 Beech Avenue, Taverham, Norwich, NR8 6HW, Ref: Tracy Guest, Tel: (01603) 864331

Important Notice to Prospective Buyers:

We draw your attention to the Special Conditions of Sale within the Legal Pack, referring to other charges in addition to the purchase price which may become payable. Such costs may include Search Fees, reimbursement of Sellers costs and Legal Fees, and Transfer Fees amongst others.

Additional Fees

Administration Charge - 0.3% inc VAT of the purchase price, subject to a minimum of £1,200 (£1,000+ VAT), payable on exchange of contracts.

Disbursements - Please see the legal pack for any disbursements listed that may become payable by the purchaser on completion.

View Larger Map

Disclaimer: The map preview provided above is for general guidance only and may not accurately reflect the exact location or surrounding buildings. Prospective buyers and interested parties are strongly advised to independently verify the precise location and surroundings before bidding.