For Sale By Auction | 11:00, 28 July 2021 | Lot 29

Bradfield Methodist Church, Heath Road, Bradfield, Manningtree, Essex, CO11 2XD

Sold £300,000

  • Detached House
  • Tenure: Freehold

Call the team on 01473 558 888 for more information

Auction Date

Wed 28/07/2021

Auction Time

11:00

Auction Venue

Livestream Auction

A spacious former Methodist Church with function room and potential for alternative use

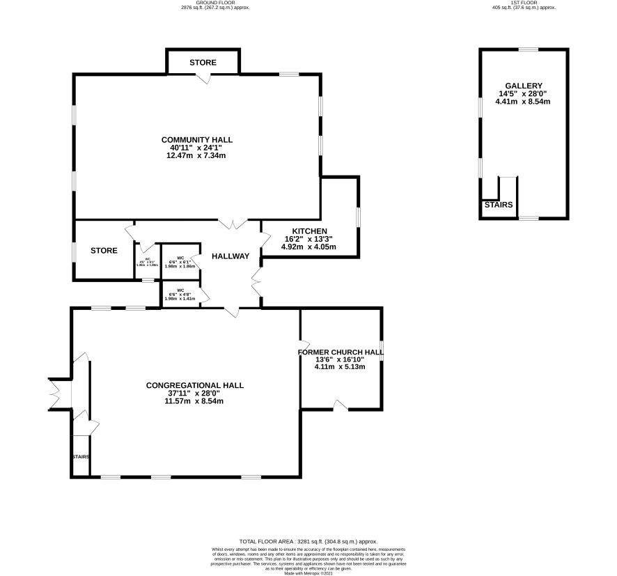
Situated in the delightful north Essex village of Bradfield just 3 miles from Manningtree with its mainline rail links to London Liverpool Street is this extended redundant Methodist Church standing in grounds approaching one fifth of an acre. The property features a cupola to the left hand gable and accommodation with a wealth of character which includes a congregational hall of approaching 1,000 sq ft with a gallery, a function room extending to over 1,000 sq ft, a kitchen, 2 ancillary rooms and 3 WCs. To either side is gated access to vehicular parking space along with additional forecourt parking to the front. The property currently has F1(f) classification but may offer potential for alternative use, interested parties are advised to make their own enquiries with Tendring District Council. NOTE: The property is Freehold apart from a small burial area to the front right hand side which will be on a long lease.

Tenure

Freehold

Viewing

Next Viewing has been scheduled for Fri 23rd July - BOOKING AN APPOINTMENT IS ESSENTIAL. Please call the Ipswich office to be allocated the next available slot on your preferred day.

Services

Interested parties are requested to make their own enquiries to the relevant authorities as to the availability of services.

Local Authority

Tendring District Council. Tel: 01255 686868

Solicitors

Capsticks LLP, Toronto Square, Toronto Street, Leeds, LS1 2HJ, Ref: Olivia Adams, Tel: 0113 322 5560

Important Notice to Prospective Buyers:

We draw your attention to the Special Conditions of Sale within the Legal Pack, referring to other charges in addition to the purchase price which may become payable. Such costs may include Search Fees, reimbursement of Sellers costs and Legal Fees, and Transfer Fees amongst others.

Additional Fees

Administration Charge - 0.3% inc VAT of the purchase price, subject to a minimum of £1140 inc VAT, payable on exchange of contracts.

Disbursements - Please see the legal pack for any disbursements listed that may become payable by the purchaser on completion.

View Larger Map

Disclaimer: The map preview provided above is for general guidance only and may not accurately reflect the exact location or surrounding buildings. Prospective buyers and interested parties are strongly advised to independently verify the precise location and surroundings before bidding.