For Sale By Auction | 11:00, 28 July 2021 | Lot 33

United Reformed Church, Meeting Green, Wickhambrook, Newmarket, Suffolk, CB8 8XS

Sold £250,000

  • Detached House
  • Tenure: Freehold

Call the team on 01473 558 888 for more information

Auction Date

Wed 28/07/2021

Auction Time

11:00

Auction Venue

Livestream Auction

A Grade II Listed United Reformed Church in a delightful village setting and with potential for alternative use (stpp)

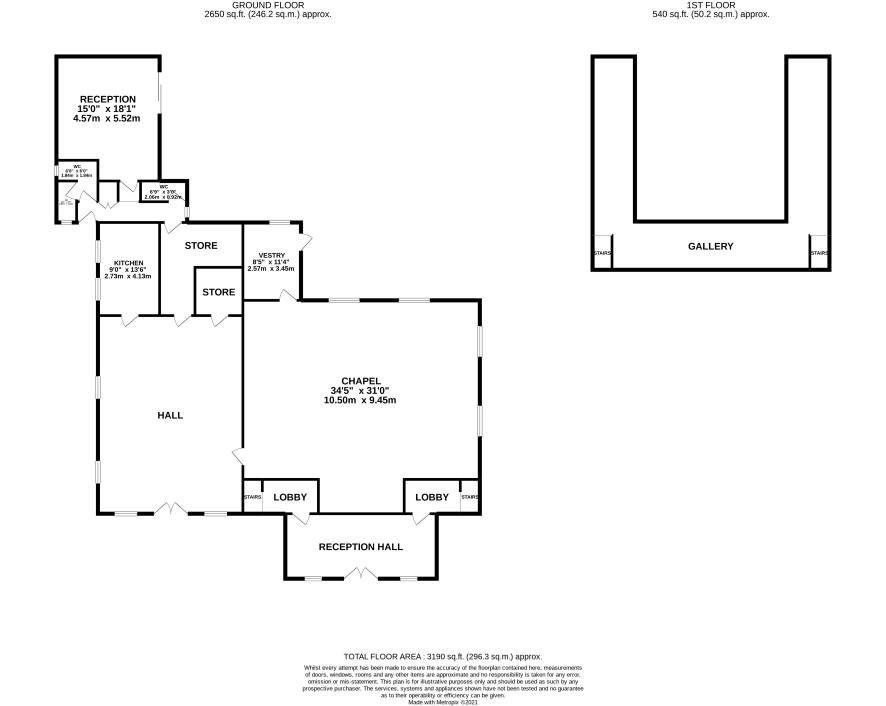
Dating from the mid 18th Century with later additions this redundant United Reformed Church offers a wealth of character and original fittings including the pews and organ. The village of Wickhambrook is located some 10 and 11 miles from Newmarket and Bury St Edmunds respectively and easily accessed from the A143. The property is set well back from the road with ample parking and also offers a 600 sq ft meeting/Sunday School hall which was previously utilised for a toddlers group. Offering potential for alternative (stpp) use we see this as a unique opportunity for the imaginative purchaser.

Tenure

Freehold

Viewing

Viewings have been scheduled for Thurs 8th, Tues 13th & Mon 19th July - BOOKING AN APPOINTMENT IS ESSENTIAL. Please call our Ipswich Office to be allocated the next available slot on your preferred day.

Services

Interested parties are requested to make their own enquiries to the relevant authorities as to the availability of services.

Local Authority

St Edmundsbury Borough Council. Tel: 01840 763233

Solicitors

Veale Wasbrough Vizards, Second Floor, 3 Brindley Place, Birmingham, B1 2JB, Ref: Greg Clark, Tel: 0121 227 3714

Important Notice to Prospective Buyers:

We draw your attention to the Special Conditions of Sale within the Legal Pack, referring to other charges in addition to the purchase price which may become payable. Such costs may include Search Fees, reimbursement of Sellers costs and Legal Fees, and Transfer Fees amongst others.

Additional Fees

Buyer's Premium - £900 inc VAT payable on exchange of contracts.

Administration Charge - 0.3% inc VAT of the purchase price, subject to a minimum of £1140 inc VAT, payable on exchange of contracts.

Disbursements - Please see the legal pack for any disbursements listed that may become payable by the purchaser on completion.

View Larger Map

Disclaimer: The map preview provided above is for general guidance only and may not accurately reflect the exact location or surrounding buildings. Prospective buyers and interested parties are strongly advised to independently verify the precise location and surroundings before bidding.