For Sale By Auction | 11:00, 20 October 2021 | Lot 18

The Duke Of Edinburgh, Coast Road, Bacton, Norwich, Norfolk, NR12 0EU

Sold £302,000

  • Detached House
  • Tenure: Freehold

Call the team on 01603 505 100 for more information

Auction Date

Wed 20/10/2021

Auction Time

11:00

Auction Venue

Livestream Auction

Former public house with permission to convert into a house set in over half an acre

The property comprises an attractive, detached Victorian building dating from 1891 with a total net internal area of 386.51sq/m / 4,160 sq/ft. The property is not listed nor in a conservation area. There are a number of potential uses including residential and commercial. It is understood that mains electricity, gas, water and drainage are connected to the property. Bacton is a seaside tourist destination approximately five miles north east of the market town of North Walsham.

Tenure

Freehold

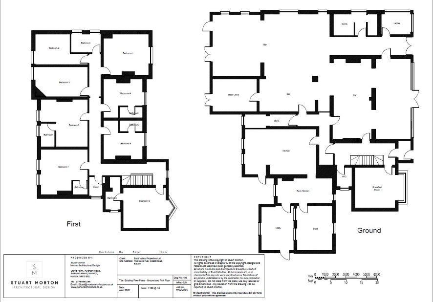
Accommodation

The premises measure on a net internal area around: Ground Floor: 257.41 sq/m / 2,770 sq/ft First Floor: 129.1 sq/m / 1,389 sq/ft Outbuildings: Barn/Garage: 24.84 sq/m / 567 sq/ft Stable: 36.81 sq/m / 396 sq/ft Cart Shed: 21.98 sq/m / 237 sq/ft

Existing Accommodation

Ground Floor: Entrance hall, bar and restaurant area, beer store, ladies and gents w.c., kitchen, back kitchen, breakfast room, two store rooms, utility, w.c. First Floor: Eight bedrooms, bathroom Outside: Large garden and outbuildings in need of attention with development potential, ample off road parking in a plot size 0.53 of an acre (stms).

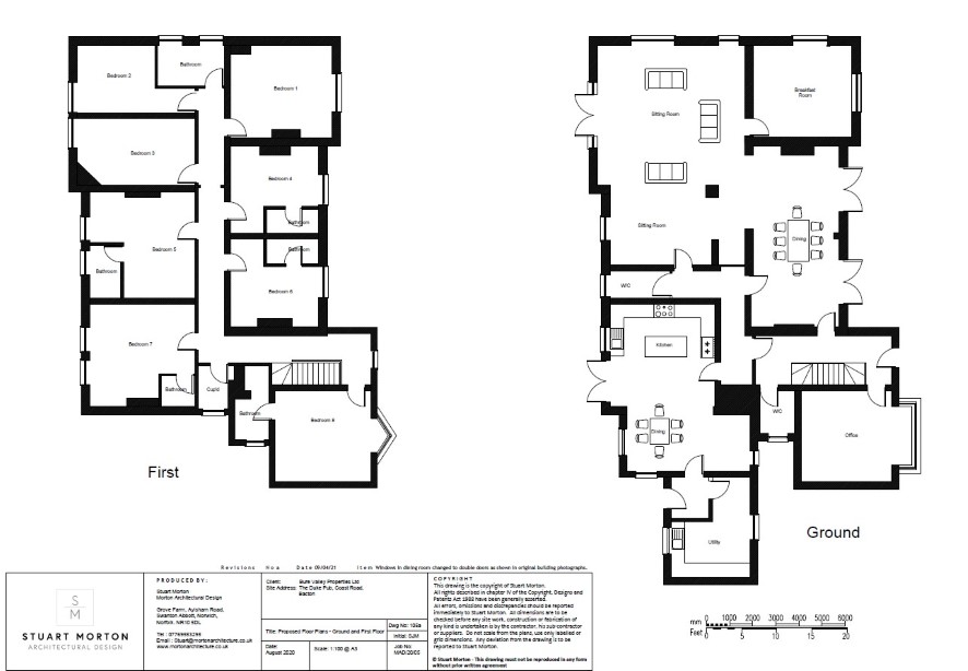
Proposed Accommodation

Ground Floor: Sitting room, breakfast room, dining room, w.c., kitchen / diner, office, w.c. x 2, utility room First Floor: Landing, eight bedrooms of which 5 en-suite, bathroom.

Planning

Planning permission was granted by North Norfolk District Council on 19th May 2021 for the change the use from public house (Class A4) to dwelling house (Class C3) with external alterations. Application number PF/20/1088. Further details and plans can be found on the public access website of North Norfolk District Council north-norfolk.gov.uk/planning.

Viewing

Individual viewings can be arranged - the next are Friday 15th October. APPOINTMENT ESSENTIAL - please call to arrange the next available slot

Energy Efficiency Rating (EPC)

Current Rating D

Services

Interested parties are requested to make their own enquiries to the relevant authorities as to the availability of services.

Local Authority

North Norfolk District Council. Tel: 01263 513811

Solicitors

Venator Legal Services, Sandy Hill House, Sandy Hill Lane, Weybourne, NR25 7HW, Ref: Philip Hunter, Tel: 01263 588630

Important Notice to Prospective Buyers:

We draw your attention to the Special Conditions of Sale within the Legal Pack, referring to other charges in addition to the purchase price which may become payable. Such costs may include Search Fees, reimbursement of Sellers costs and Legal Fees, and Transfer Fees amongst others.

Additional Fees

Administration Charge - 0.3% inc VAT of the purchase price, subject to a minimum of £1140 inc VAT, payable on exchange of contracts.

Disbursements - Please see the legal pack for any disbursements listed that may become payable by the purchaser on completion.

View Larger Map

Disclaimer: The map preview provided above is for general guidance only and may not accurately reflect the exact location or surrounding buildings. Prospective buyers and interested parties are strongly advised to independently verify the precise location and surroundings before bidding.